Top.Mail.Ru

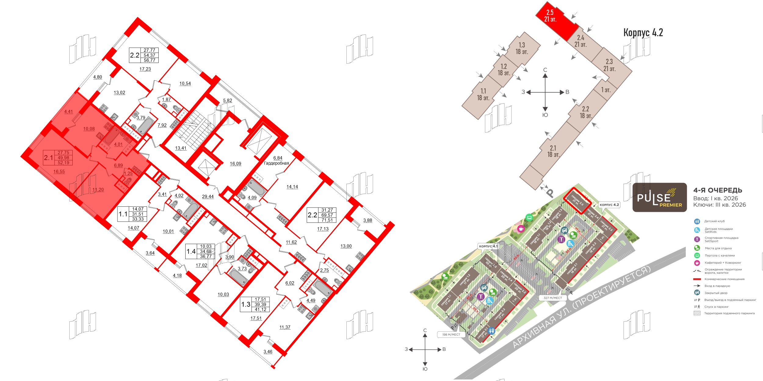
2 комнатная квартира 49.98 м², № 716 Переуступка

Квартира в ЖК «Пульс Премьер», 2 комнатная, 49.98 м², 6 этаж
Квартира в ЖК «Пульс Премьер», 2 комнатная, 49.98 м², 6 этаж
49,98 м² 27,75 м² 10,08 м² 2.77 м 6 из 21
Общая площадь Площадь комнат Площадь кухни Высота потолка Этаж
Тип санузла:  Раздельный Лоджия Отделка — 
Норд Лайн серый комфорт
Выберите условия покупки
Перейти к сравнению