Top.Mail.Ru

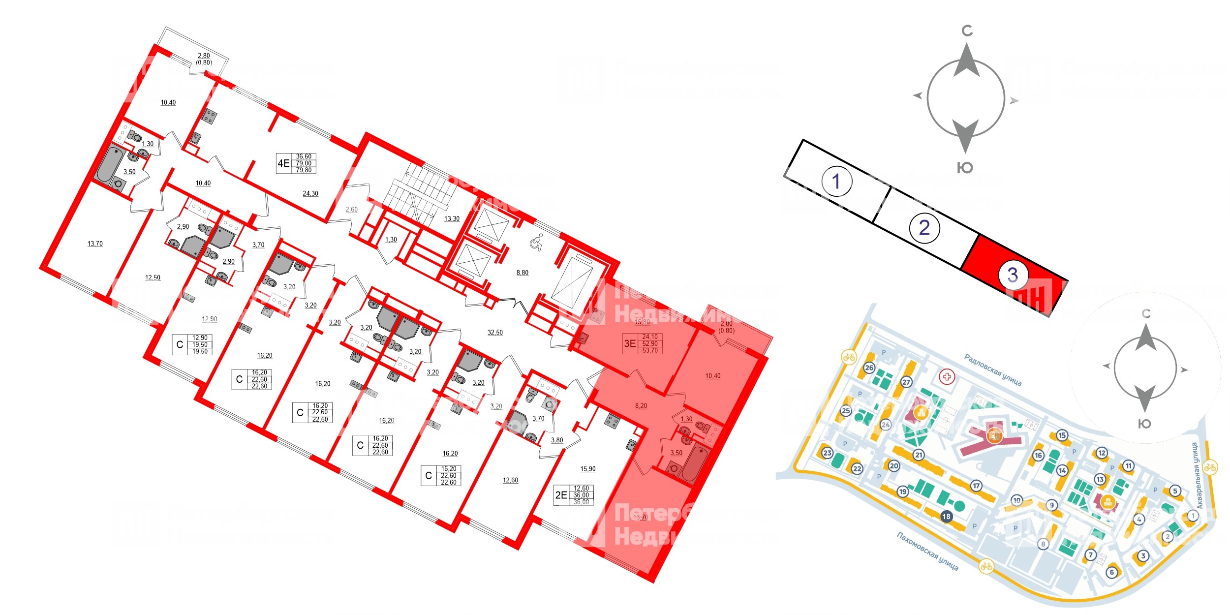
3е комнатная квартира 53.7 м², № 372

Квартира в ЖК «Ручьи–2», 2 комнатная, 53.7 м², 11 этаж
Квартира в ЖК «Ручьи–2», 2 комнатная, 53.7 м², 11 этаж
53,70 м² 24,10 м² 15,80 м² 2.56 м 11 из 20
Общая площадь Площадь комнат Площадь кухни Высота потолка Этаж
Тип санузла:  Раздельный Есть балкон Отделка — 
Comfort Stone
Выберите условия покупки
Перейти к сравнению