Главная
Новостройки
Ручьи 2
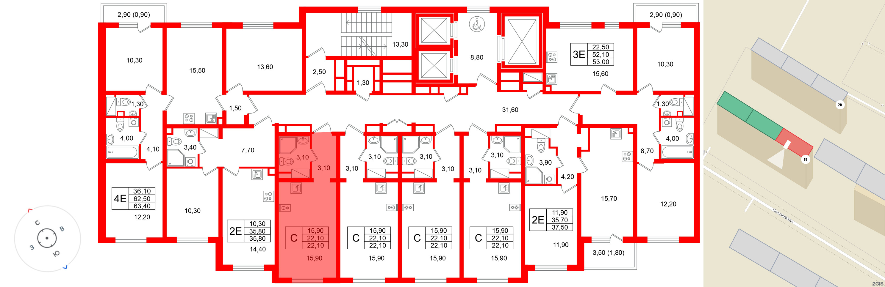
Студия 22.1 м²
Студия 22.1 м², № 321
ЖК «Ручьи–2»
, Дом 19 (128.2)
Срок сдачи — III кв. 2027
г.
В
избранном
избранное
Удалить из сравнения
Сравнить
Распечатать
Отправить по почте
Планировка
На этаже
На карте
Отделка
Меблировка
Комфорт стоун
Комфорт вуд
22,10 м²
2.56 м
3 из 20
Общая площадь
Высота потолка
Этаж
Отделка —
Да
Запросить цену
100% оплата
Ипотека
от 3 386
₽/мес.
Выбрать условия
Доступные опции
Меблировка
от 224 000 руб.
Отделка
включена
Выберите условия покупки
Забронируйте объект по телефону
Онлайн-бронирование временно недоступно
Перейти к сравнению
Закрыть