Top.Mail.Ru

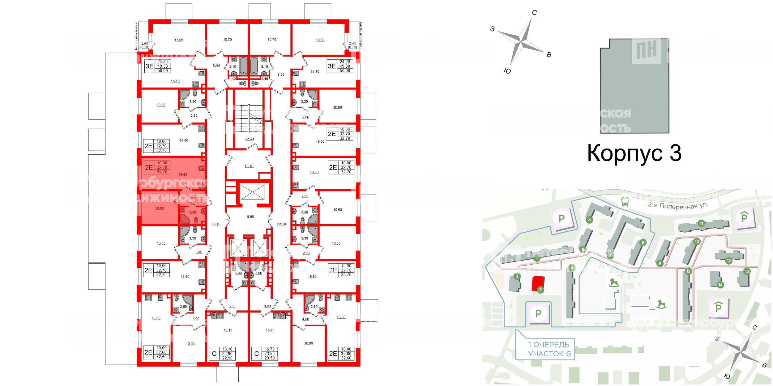
2е комнатная квартира 32.7 м², № 3

Квартира в ЖК «Ржевский парк», 1 комнатная, 32.7 м², 2 этаж
Квартира в ЖК «Ржевский парк», 1 комнатная, 32.7 м², 2 этаж
32,70 м² 10,00 м² 16,60 м² 2.56 м 2 из 16
Общая площадь Площадь комнат Площадь кухни Высота потолка Этаж
Тип санузла:  Совмещенный Балкон - нет Отделка — 
Комфорт стоун
Выберите условия покупки
Перейти к сравнению