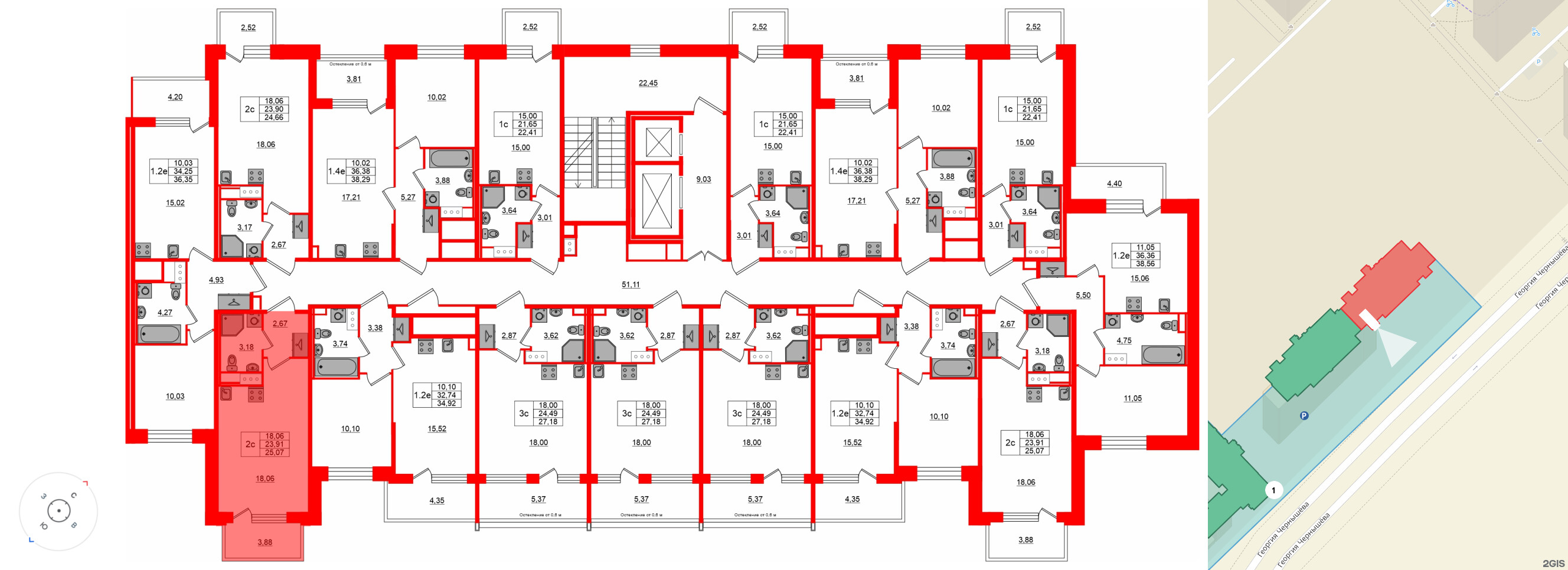
Студия 23.91 м², № 312
ЖК «Сэтл ЛОФТ» , Корпус 1
Срок сдачи — IV кв. 2027 г.
Условия покупки
Реклама ООО «ЦРП «Петербургская Недвижимость», ИНН 7816094750.
Застройщик ООО «Специализированный застройщик «Сэтл Московское шоссе». Проектная декларация на сайте ЕИСЖС (https://наш.дом.рф). Кредит предоставляет ПАО «Совкомбанк».
*Платеж рассчитан на первый год при заключении ДДУ в ЖК Сэтл Лофт для квартиры-студии площадью 21,65 м2 стоимостью 7 700 158 руб., с использованием беспроцентной рассрочки от застройщика и при присоединении заемщика к акции «Сниженный платеж» по программе «Новостройка» от ПАО «Совкомбанк». Срок акции по 31.12.2026. Паспорт акции по ссылке https://sovcombank.ru/pages/kak-sdelat-ipoteku-vigodnee-uchastvovat-v-aktsiyah-. Рассрочка предоставляется застройщиком на уплату первоначального взноса в течении 12 мес. с даты подписания ДДУ на условиях, предусмотренных договором. Первоначальный взнос 1 540 802 руб. Остаток 6 159 356 руб. оплачивается за счет кредитных средств. В течение 17 мес. с даты заключения кредитного договора до момента зачисления кредита клиент оплачивает комиссию за открытие и ведение непокрытого аккредитива – 30 796,78 руб. в мес., после выдачи кредита размер платежа – 103 864,61 руб. в мес., срок кредита 360 мес., полная стоимость кредита от 22,655% до 27,889% годовых, процентная ставка 20,49% годовых при наличии договоров личного страхования и страхования жилого помещения (после оформления права собственности). Расчет произведен 24.03.2026 и является предварительным. Количество квартир ограничено. ЖК Сэтл Лофт: Санкт-Петербург, ул. Георгия Чернышёва, кад.номер ЗУ 78:14:0007691:37482. Подробности на pn.ru. Банк принимает решение о заключении кредитного договора на основании всей предоставленной информации в соответствии с требованиями к заемщикам. Изучите все условия кредита (займа) в разделе Ипотечные программы/Новостройка на сайте банка sovcombank.ru.
Оценивайте свои финансовые возможности и риски.