Top.Mail.Ru

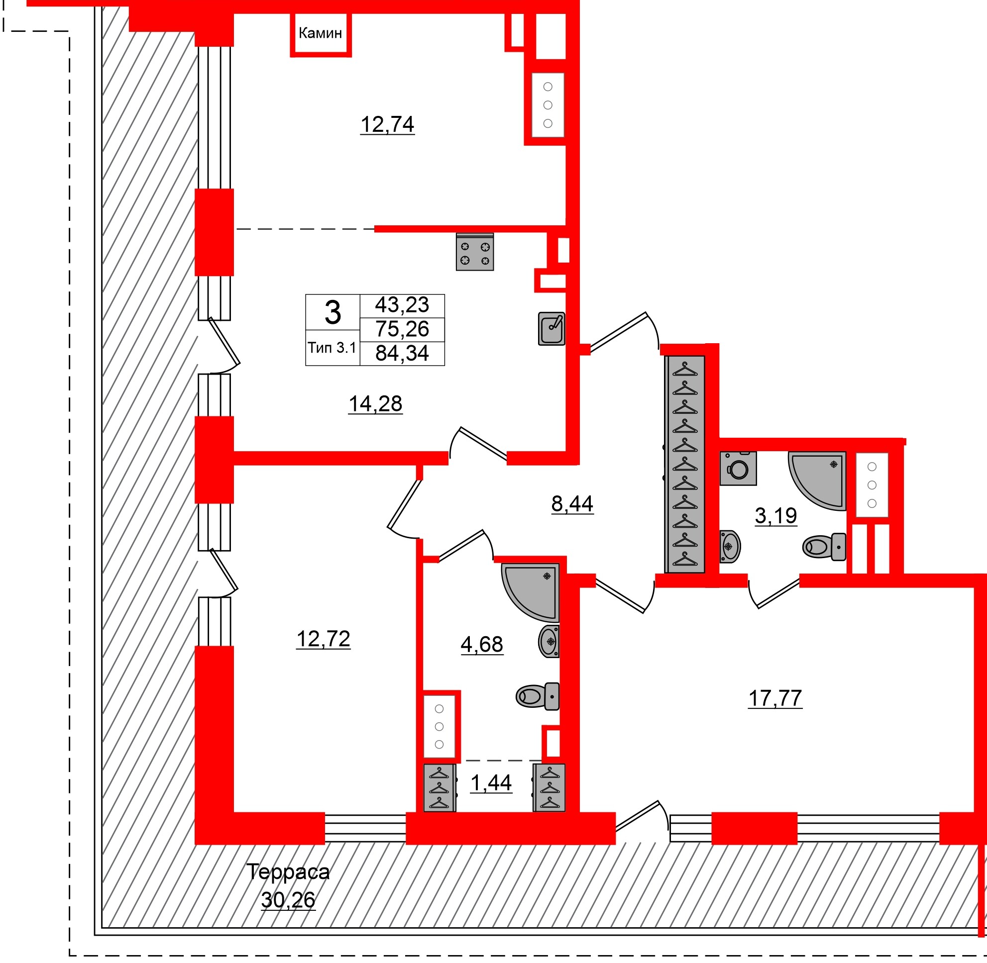
4е комнатная квартира 75.26 м², № 82

Квартира в ЖК «Сэтл Ривьера», 3 комнатная, 75.26 м², 12 этаж
Квартира в ЖК «Сэтл Ривьера», 3 комнатная, 75.26 м², 12 этаж
Этаж
  • 12
  • Квартира в ЖК «Сэтл Ривьера», 3 комнатная, 75.26 м², 12 этаж
75,26 м² 43,23 м² 14,28 м² 3.04 м 12 из 12
Общая площадь Площадь комнат Площадь кухни Высота потолка Этаж
Два санузла Терраса Отделка — 
Норд Лайн серый плюс

Условия покупки

Квартира с отделкой: первый взнос от 5,9 млн |
*Подробнее
Встреча на объекте

Посмотрите жилой комплекс и оцените преимущества

Выберите условия покупки
Перейти к сравнению