Top.Mail.Ru

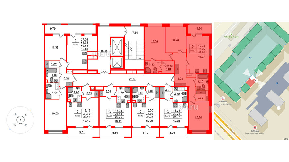
4е комнатная квартира 84.29 м², № 1819

Квартира в ЖК «Сэтл Ривьера», 3 комнатная, 84.29 м², 5 этаж
Квартира в ЖК «Сэтл Ривьера», 3 комнатная, 84.29 м², 5 этаж
84,29 м² 40,28 м² 18,37 м² 2.77 м 5 из 12
Общая площадь Площадь комнат Площадь кухни Высота потолка Этаж
Два санузла Лоджия Отделка — 
Норд Лайн светлый плюс

Уникальные квартиры

Условия покупки

Квартира с отделкой: первый взнос от 5,9 млн |
*Подробнее
Встреча на объекте

Посмотрите жилой комплекс и оцените преимущества

Выберите условия покупки
Перейти к сравнению