Top.Mail.Ru

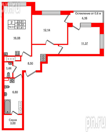
3е комнатная квартира 59.33 м², № 597

Квартира в ЖК «Сэтл Ривьера», 2 комнатная, 59.33 м², 3 этаж
Квартира в ЖК «Сэтл Ривьера», 2 комнатная, 59.33 м², 3 этаж
59,33 м² 23,51 м² 16,08 м² 2.77 м 3 из 12
Общая площадь Площадь комнат Площадь кухни Высота потолка Этаж
Два санузла Лоджия Отделка — 
Норд Лайн светлый плюс

Уникальные квартиры

Условия покупки

Квартира с отделкой: первый взнос от 5,9 млн |
*Подробнее
Встреча на объекте

Посмотрите жилой комплекс и оцените преимущества

Выберите условия покупки
Перейти к сравнению