Top.Mail.Ru

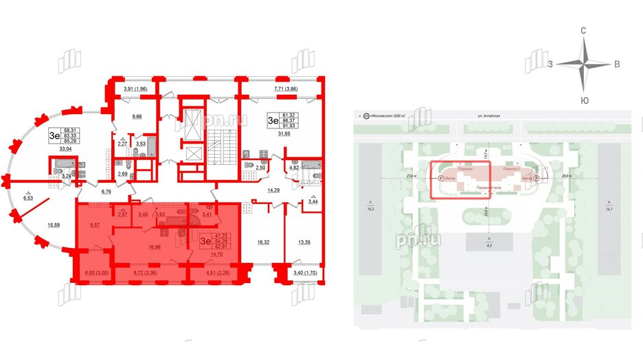
3е комнатная квартира 62.91 м², № 81

Квартира в ЖК Шепилевский, 2 комнатная, 62.91 м², 20 этаж
Квартира в ЖК Шепилевский, 2 комнатная, 62.91 м², 20 этаж
62,91 м² 24,27 м² 16,96 м² 3 м 20 из 25
Общая площадь Площадь комнат Площадь кухни Высота потолка Этаж
Два санузла Две лоджии Отделка — 
Предчистовая
Выберите условия покупки
Перейти к сравнению