Top.Mail.Ru

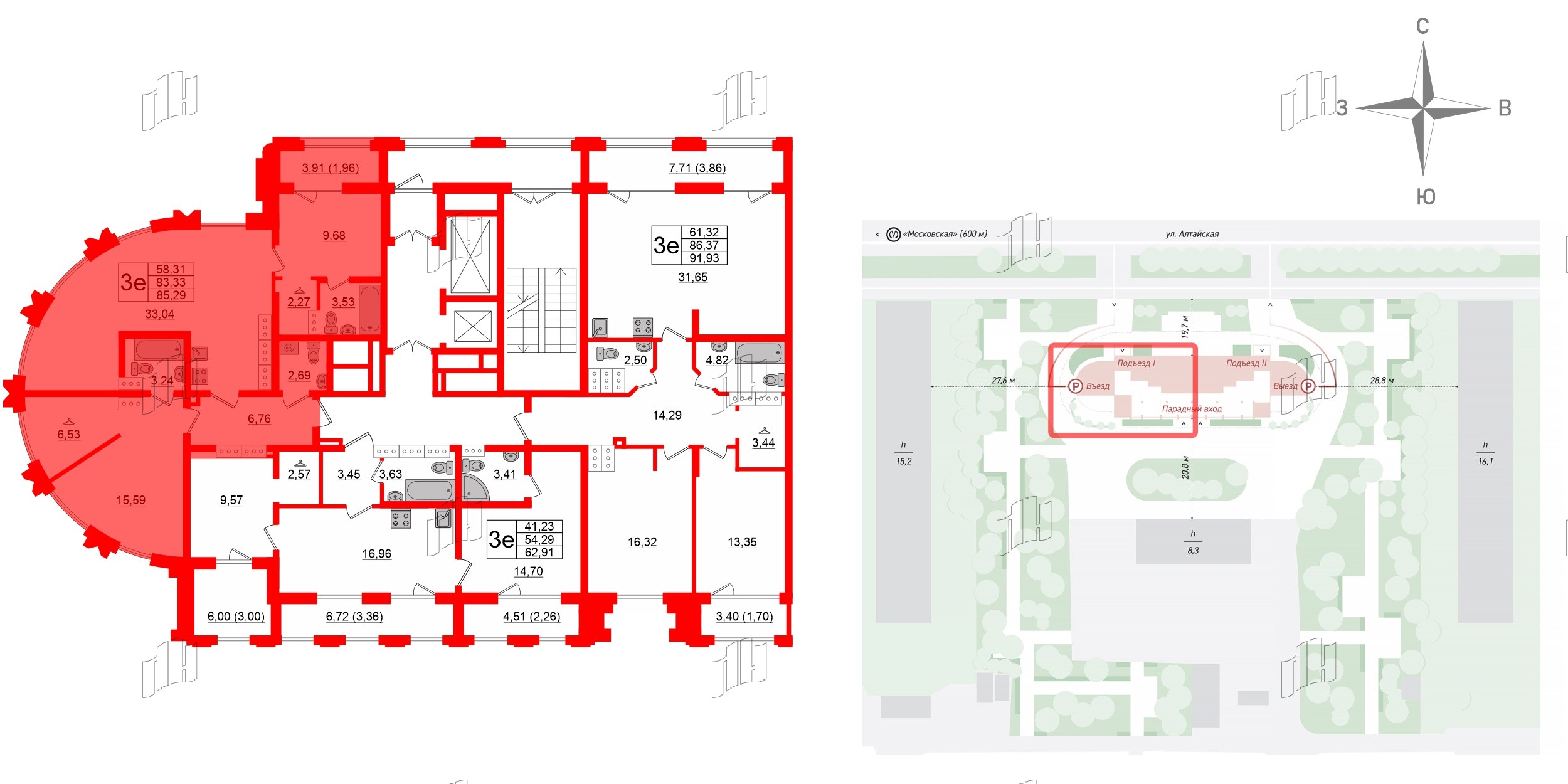
3е комнатная квартира 85.29 м², № 82

Квартира в ЖК Шепилевский, 2 комнатная, 85.29 м², 20 этаж
Квартира в ЖК Шепилевский, 2 комнатная, 85.29 м², 20 этаж
85,29 м² 25,27 м² 33,04 м² 3 м 20 из 25
Общая площадь Площадь комнат Площадь кухни Высота потолка Этаж
Три санузла Лоджия Отделка — 
Предчистовая
Выберите условия покупки
Перейти к сравнению