Главная
Новостройки
Шотландия
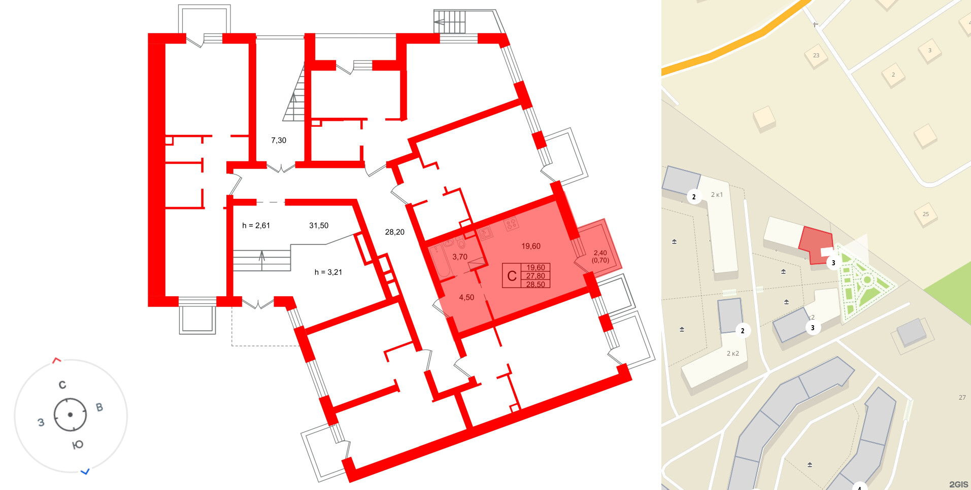
Студия 27.8 м²
Студия 27.8 м², № 16
ЖК «Шотландия»
, Дом 3 к.1
Срок сдачи — Сдан
В
избранном
избранное
Удалить из сравнения
Сравнить
Распечатать
Отправить по почте
Планировка
На этаже
На карте
Отделка
Меблировка
27,80 м²
2.6 м
1 из 3
Общая площадь
Высота потолка
Этаж
Отделка —
Да
Запросить цену
100% оплата
Ипотека
от 2 847
₽/мес.
Выбрать условия
Доступные опции
Меблировка
от 224 000 руб.
Отделка
включена
Условия покупки
Акции
Выгодное предложение | Готовые квартиры
*Подробнее
Подробности акции уточняйте у менеджера. Срок окончания акции: 30.04.2026
Выберите условия покупки
Забронируйте объект по телефону
Онлайн-бронирование временно недоступно
Перейти к сравнению
Закрыть