Главная
Новостройки
Сибирь
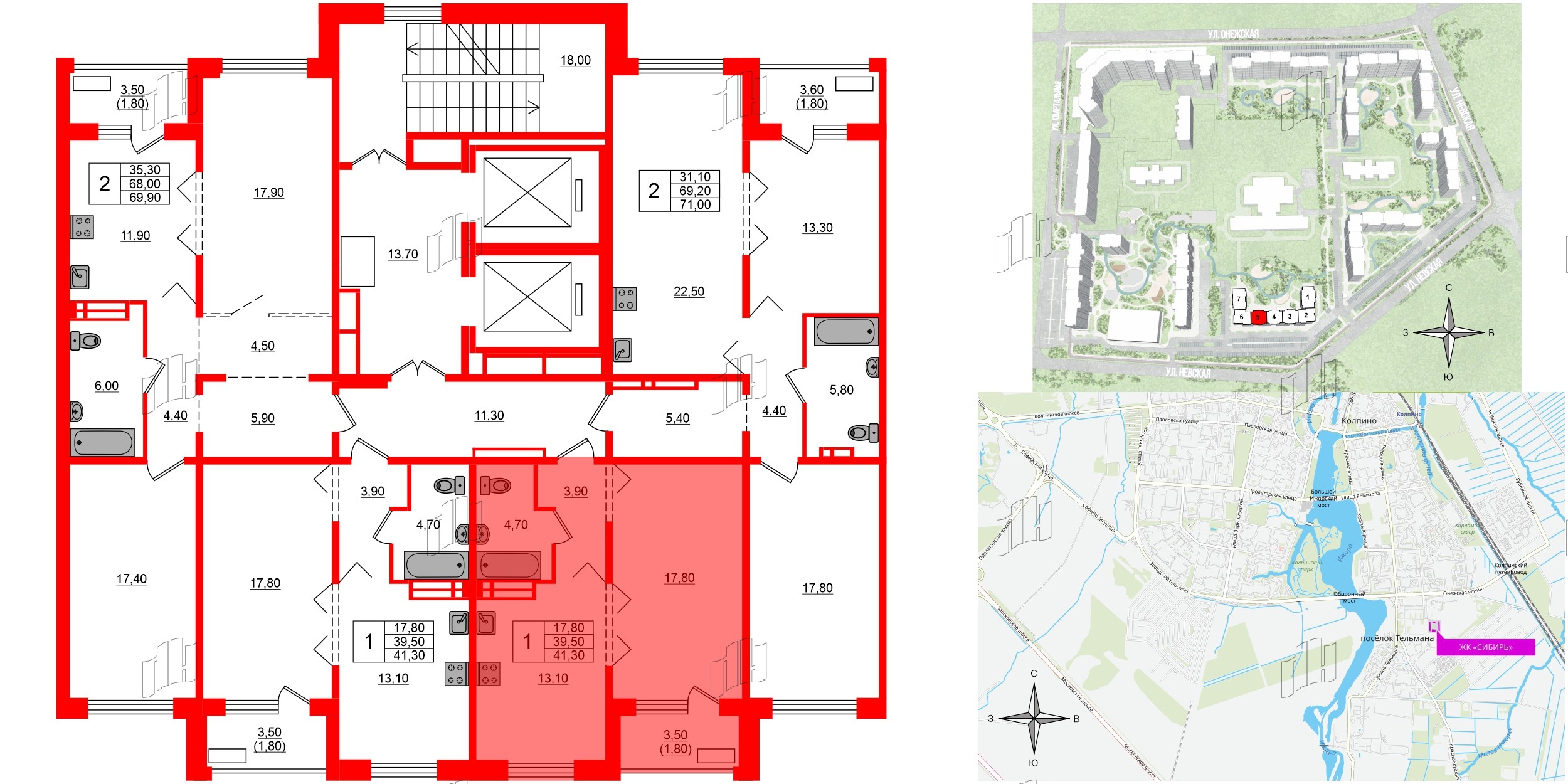
1 комн. кв. 41.3 м²
1 комнатная квартира 41.3 м², № 324
ЖК Сибирь
, Корпус 7
Срок сдачи — Сдан
В
избранном
избранное
Удалить из сравнения
Сравнить
Распечатать
Отправить по почте
Планировка
На этаже
На карте
Меблировка
41,30 м²
17,80 м²
13,10 м²
2.69 м
11 из 14
Общая площадь
Площадь комнат
Площадь кухни
Высота потолка
Этаж
Тип санузла: 
Совмещенный
Лоджия
Отделка —
Нет
Запросить цену
100% оплата
Ипотека
от 6 001
₽/мес.
Выбрать условия
Доступные опции
Меблировка
от 224 000 руб.
Выберите условия покупки
Забронируйте объект по телефону
Онлайн-бронирование временно недоступно
Перейти к сравнению
Закрыть