Top.Mail.Ru

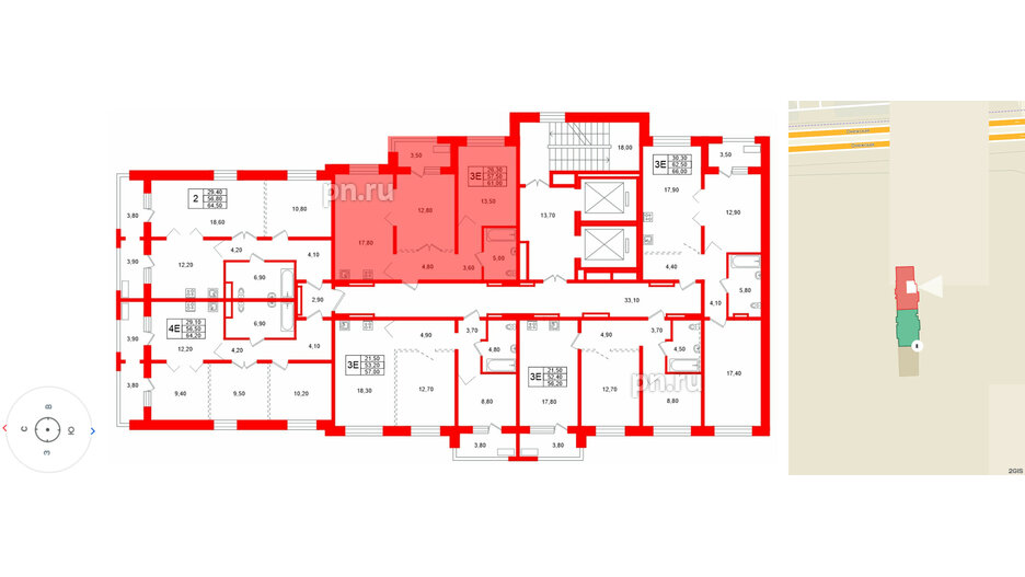
3е комнатная квартира 61 м², № 111

Квартира в ЖК Сибирь, 2 комнатная, 61 м², 5 этаж
Квартира в ЖК Сибирь, 2 комнатная, 61 м², 5 этаж
61,00 м² 26,30 м² 17,80 м² 2.69 м 5 из 17
Общая площадь Площадь комнат Площадь кухни Высота потолка Этаж
Тип санузла:  Совмещенный Лоджия Отделка — 
Нет
Выберите условия покупки
Перейти к сравнению