Top.Mail.Ru

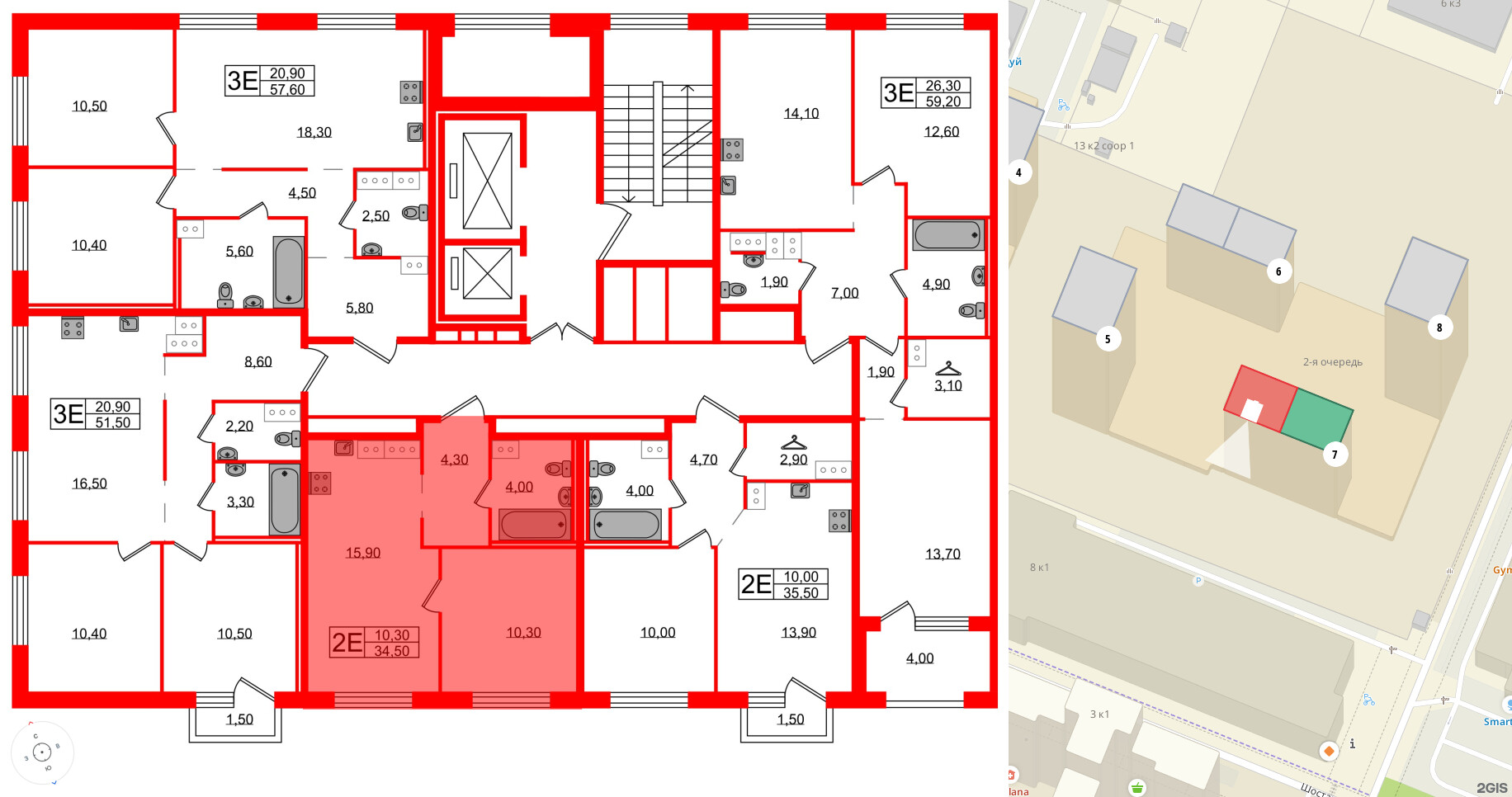
2е комнатная квартира 34.5 м², № 892

Квартира в ЖК Струны, 1 комнатная, 34.5 м², 9 этаж
Квартира в ЖК Струны, 1 комнатная, 34.5 м², 9 этаж
34,50 м² 10,30 м² 15,90 м² 2.7 м 9 из 15
Общая площадь Площадь комнат Площадь кухни Высота потолка Этаж
Тип санузла:  Совмещенный Балкон - нет Отделка — 
White Box
Выберите условия покупки
Перейти к сравнению