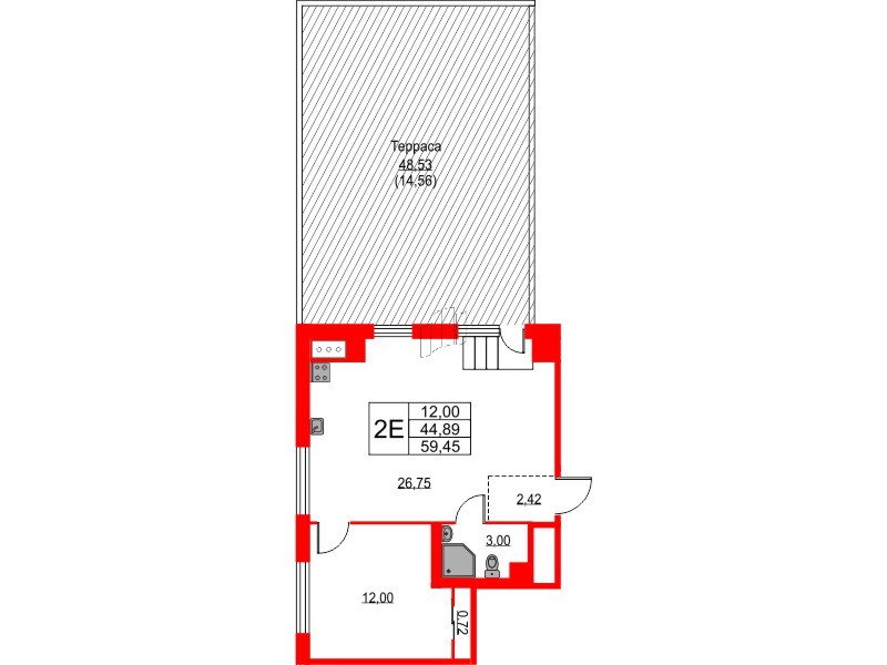
2е комнатная квартира 59.45 м², № 64
ЖК «Таленто» , Корпус 1
Срок сдачи — II кв. 2026 г.
| 59,45 м² | 14,40 м² | 28,28 м² | 2.9 м | 9 из 12 |
| Общая площадь | Площадь комнат | Площадь кухни | Высота потолка | Этаж |
|---|
| Тип санузла:  | Совмещенный | Терраса | Отделка — |
Нет
|
|---|
Уникальные квартиры
Выберите условия покупки
Забронируйте объект по телефону
Онлайн-бронирование временно недоступно