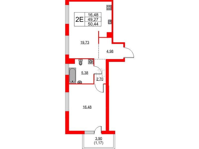
2е комнатная квартира 48.98 м², № 28
ЖК «Таленто» , Корпус 1
Срок сдачи — II кв. 2026 г.
| 48,98 м² | 15,89 м² | 27,20 м² | 2.9 м | 3 из 12 |
| Общая площадь | Площадь комнат | Площадь кухни | Высота потолка | Этаж |
|---|
| Тип санузла:  | Совмещенный | Есть балкон | Отделка — |
Нет
|
|---|
Выберите условия покупки
Забронируйте объект по телефону
Онлайн-бронирование временно недоступно