Top.Mail.Ru

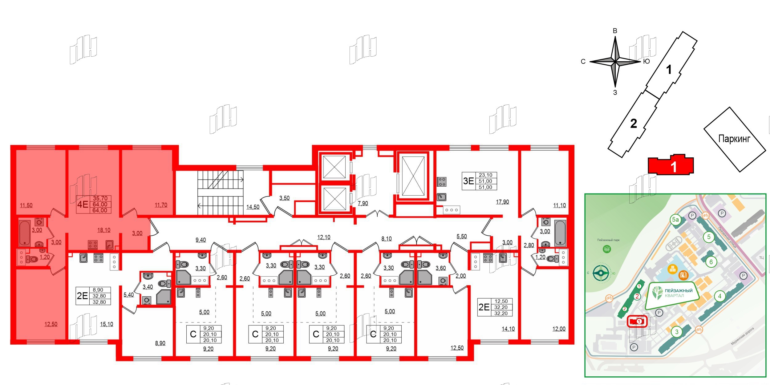
4е комнатная квартира 64 м², № 135

Квартира в ЖК «Цветной город», 3 комнатная, 64 м², 18 этаж
Квартира в ЖК «Цветной город», 3 комнатная, 64 м², 18 этаж
64,00 м² 35,70 м² 18,10 м² 2.56 м 18 из 22
Общая площадь Площадь комнат Площадь кухни Высота потолка Этаж
Два санузла Балкон - нет Отделка — 
Комфорт стоун
Выберите условия покупки
Перейти к сравнению