Top.Mail.Ru

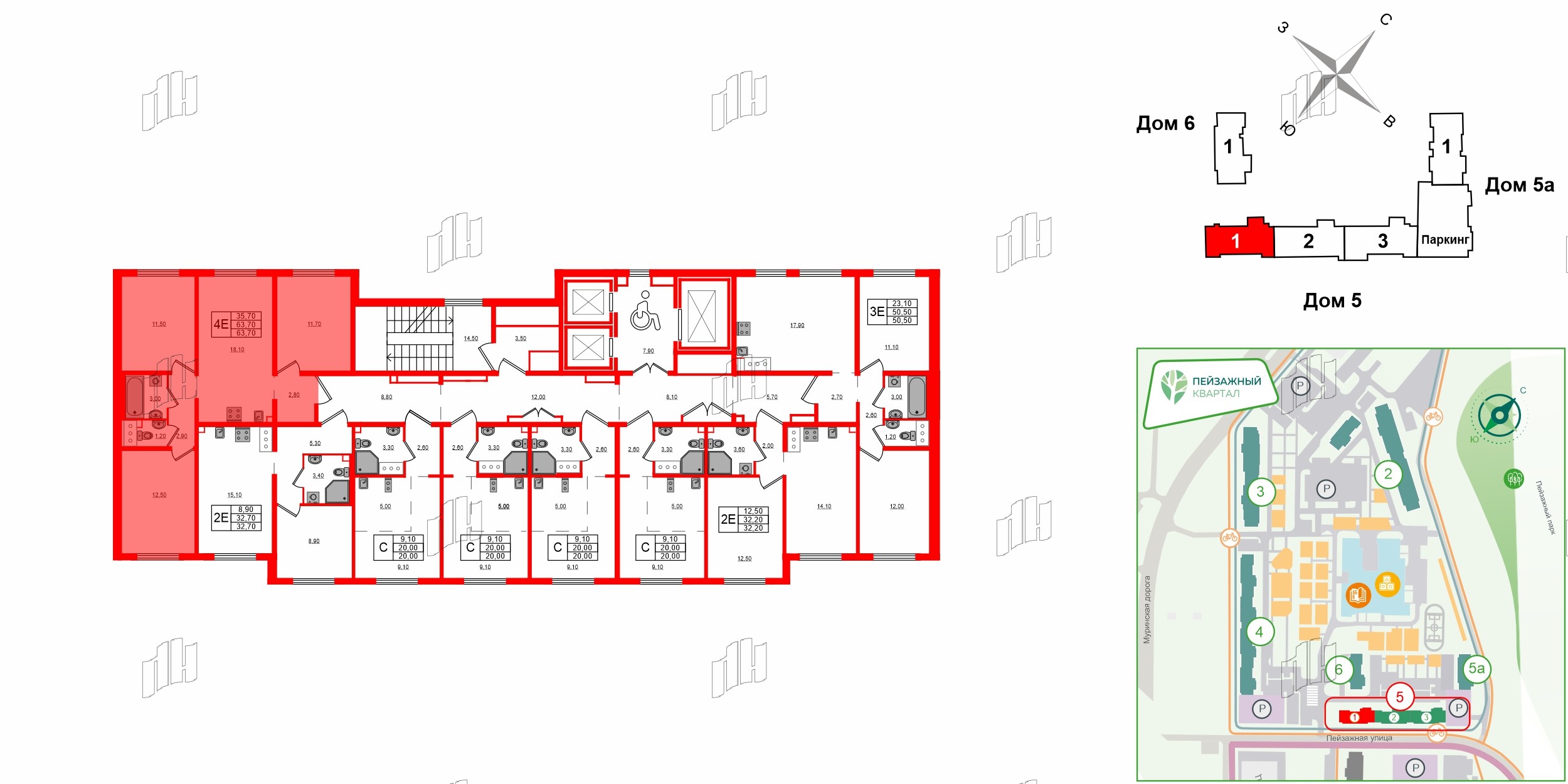
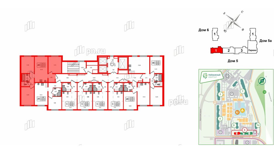
4е комнатная квартира 63.7 м², № 49

Квартира в ЖК 'Цветной город', 3 комнатная, 63.7 м², 8 этаж
Квартира в ЖК 'Цветной город', 3 комнатная, 63.7 м², 8 этаж
63,70 м² 35,70 м² 18,10 м² 2.56 м 8 из 19
Общая площадь Площадь комнат Площадь кухни Высота потолка Этаж
Тип санузла:  Раздельный Балкон - нет Отделка — 
Comfort Stone
Выберите условия покупки
Перейти к сравнению