Top.Mail.Ru

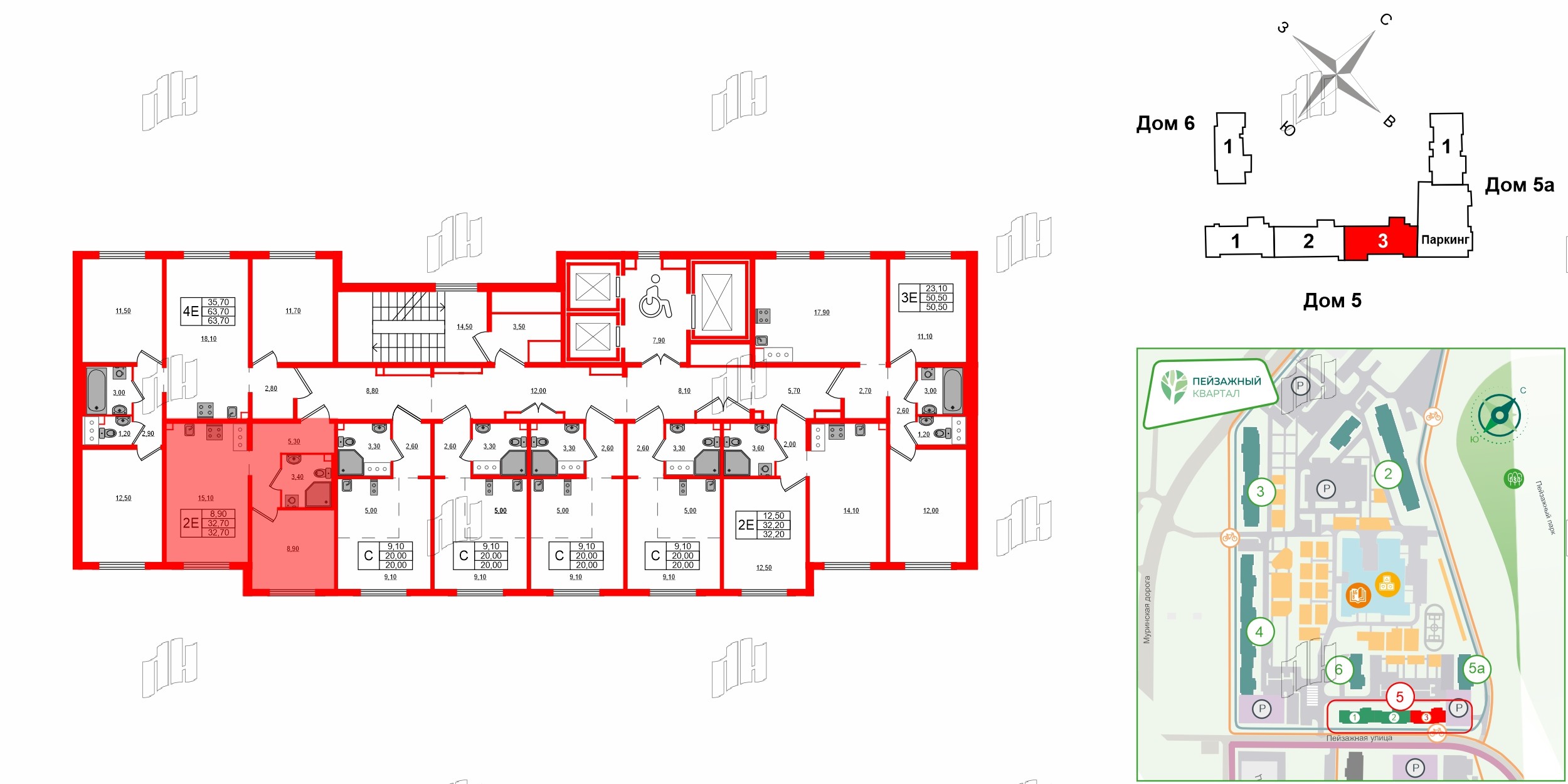
2е комнатная квартира 32.7 м², № 378

Квартира в ЖК «Цветной город», 1 комнатная, 32.7 м², 13 этаж
Квартира в ЖК «Цветной город», 1 комнатная, 32.7 м², 13 этаж
32,70 м² 8,90 м² 15,10 м² 2.56 м 13 из 19
Общая площадь Площадь комнат Площадь кухни Высота потолка Этаж
Тип санузла:  Совмещенный Балкон - нет Отделка — 
Комфорт стоун
Выберите условия покупки
Перейти к сравнению