Top.Mail.Ru

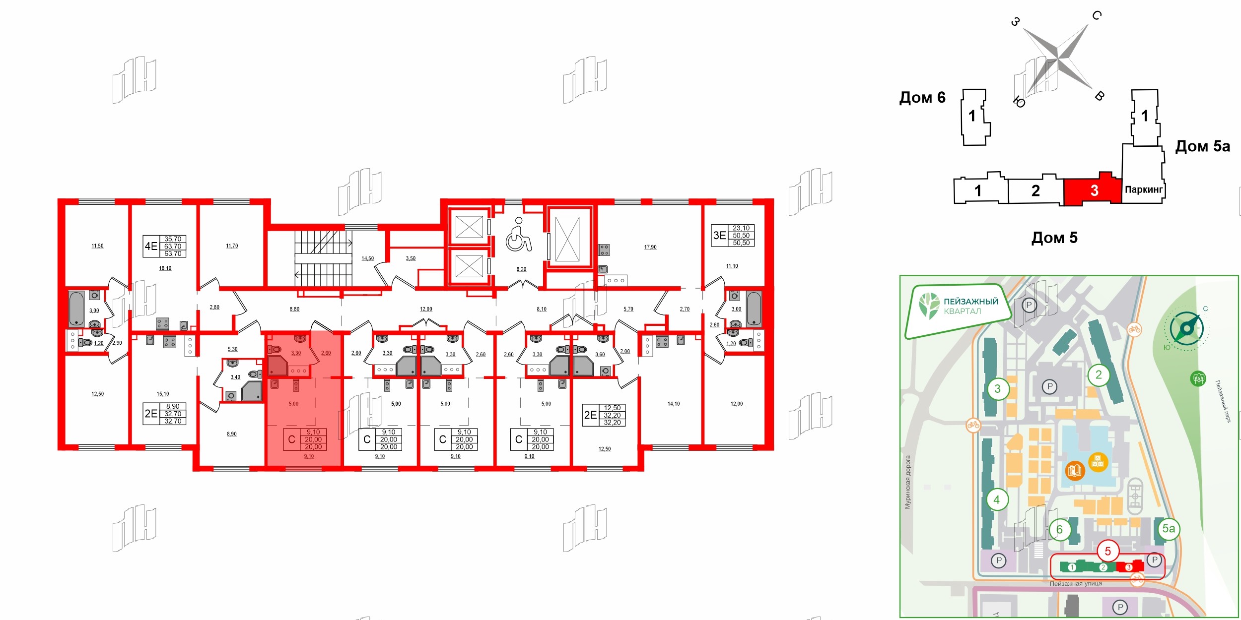
Студия 20 м², № 315

Квартира в ЖК 'Цветной город', студия, 20 м², 5 этаж
Квартира в ЖК 'Цветной город', студия, 20 м², 5 этаж
20,00 м² 9,10 м² 5,00 м² 2.56 м 5 из 19
Общая площадь Площадь комнат Площадь кухни Высота потолка Этаж
Тип санузла:  Совмещенный Балкон - нет Отделка — 
Comfort Stone
Выберите условия покупки
Перейти к сравнению