Top.Mail.Ru

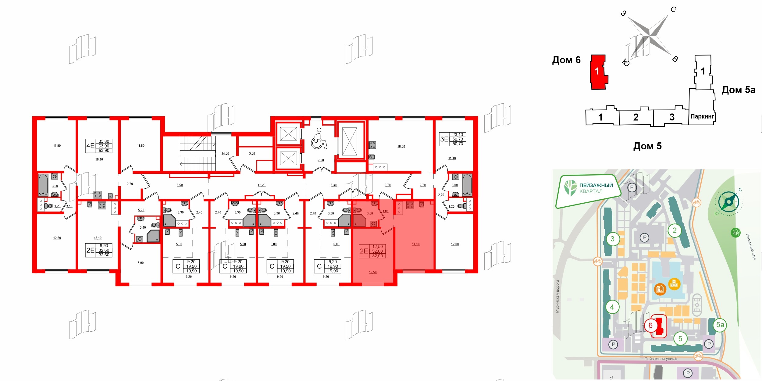
2е комнатная квартира 32 м², № 71

Квартира в ЖК 'Цветной город', 1 комнатная, 32 м², 10 этаж
Квартира в ЖК 'Цветной город', 1 комнатная, 32 м², 10 этаж
32,00 м² 12,50 м² 14,10 м² 2.56 м 10 из 15
Общая площадь Площадь комнат Площадь кухни Высота потолка Этаж
Тип санузла:  Совмещенный Балкон - нет Отделка — 
Comfort Stone
Выберите условия покупки
Перейти к сравнению