Top.Mail.Ru

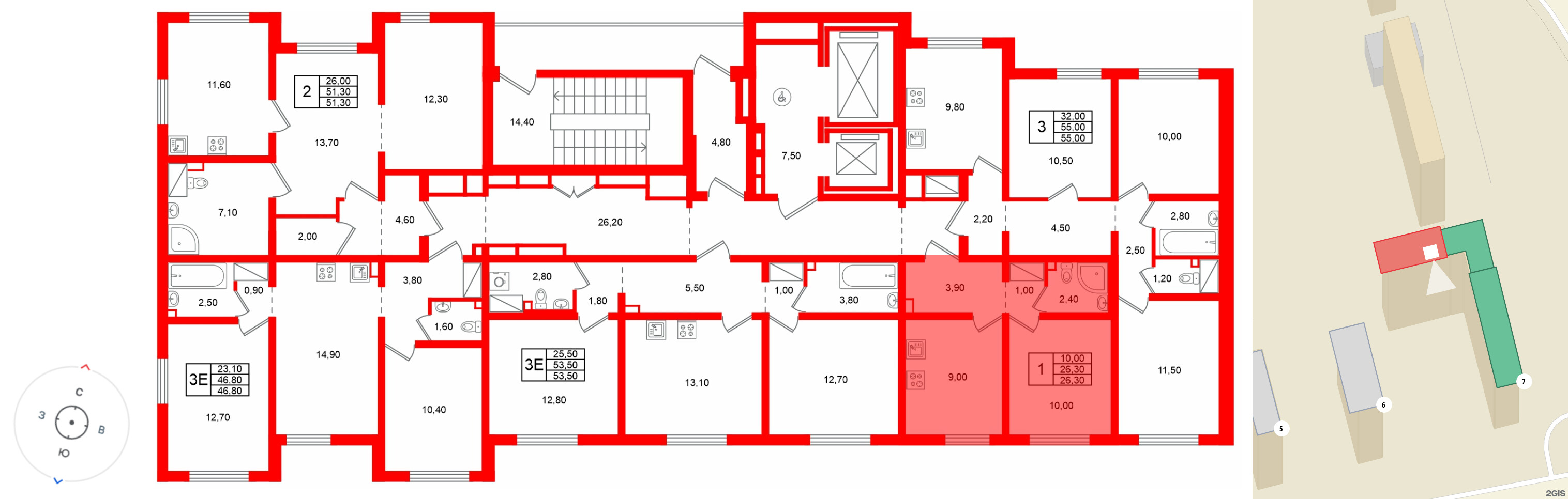
1 комнатная квартира 26.3 м², № 23

Квартира в ЖК «Цветной город», 1 комнатная, 26.3 м², 5 этаж
Квартира в ЖК «Цветной город», 1 комнатная, 26.3 м², 5 этаж
26,30 м² 10,00 м² 9,00 м² 2.56 м 5 из 25
Общая площадь Площадь комнат Площадь кухни Высота потолка Этаж
Тип санузла:  Совмещенный Балкон - нет Отделка — 
Комфорт стоун
Выберите условия покупки
Перейти к сравнению