Top.Mail.Ru

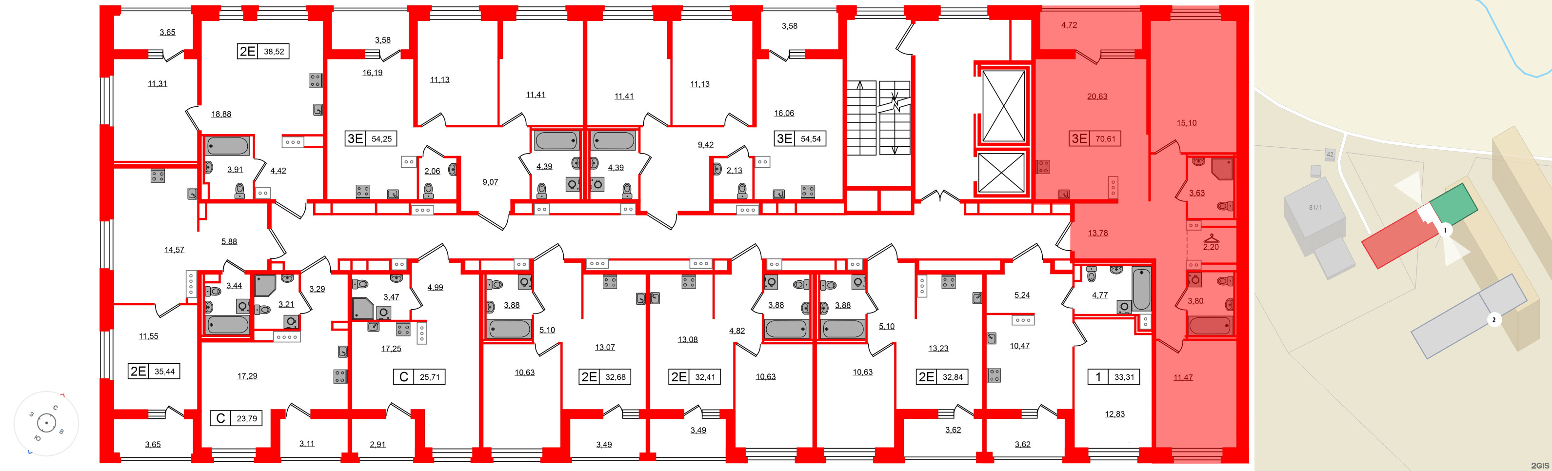
3е комнатная квартира 70.61 м², № 98

Квартира в ЖК «Ультра Сити 3.0», 2 комнатная, 70.61 м², 11 этаж
Квартира в ЖК «Ультра Сити 3.0», 2 комнатная, 70.61 м², 11 этаж
70,61 м² 26,57 м² 20,63 м² 2.7 м 11 из 17
Общая площадь Площадь комнат Площадь кухни Высота потолка Этаж
Два санузла Лоджия Отделка — 
White Box ("Уайт Бокс")

Уникальные квартиры

Квартира с гардеробной
Подробнее о преимуществе

Выберите условия покупки
Перейти к сравнению