Top.Mail.Ru

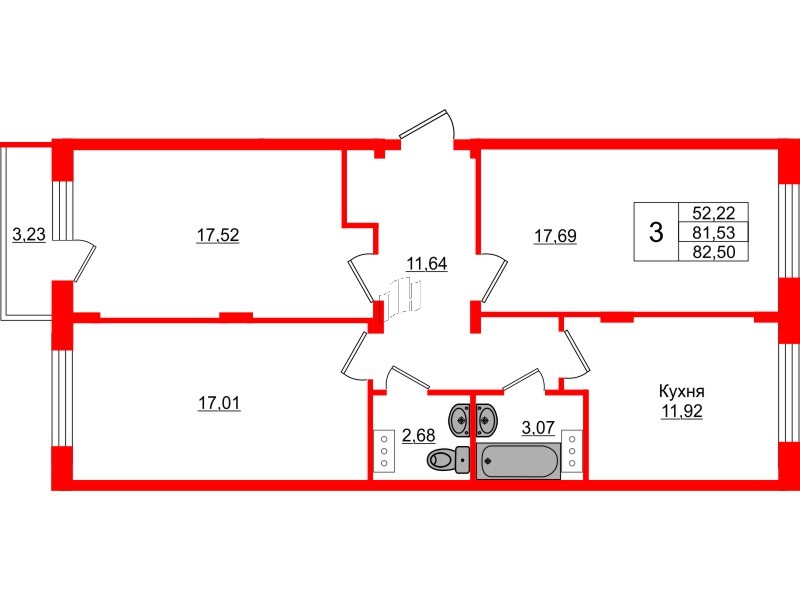
3 комнатная квартира 81.11 м², № 25

Квартира в ЖК Верево Сити, 3 комнатная, 81.11 м², 3 этаж
Квартира в ЖК Верево Сити, 3 комнатная, 81.11 м², 3 этаж
81,11 м² 52,22 м² 11,92 м² 2.76 м 3 из 4
Общая площадь Площадь комнат Площадь кухни Высота потолка Этаж
Тип санузла:  Раздельный Есть балкон Отделка — 
Нет
Выберите условия покупки
Перейти к сравнению