Главная
Новостройки
Всевгород
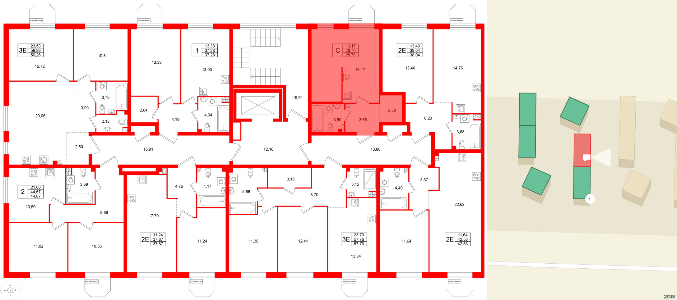
Студия 28.7 м²
Студия 28.7 м², № 44
ЖК Всевгород
, Корпус 1
Срок сдачи — IV кв. 2027
г.
В
избранном
избранное
Удалить из сравнения
Сравнить
Распечатать
Отправить по почте
Планировка
На этаже
На карте
Меблировка
28,70 м²
19,17 м²
2.85 м
3 из 4
Общая площадь
Площадь комнат
Высота потолка
Этаж
Тип санузла: 
Совмещенный
Балкон - нет
Отделка —
Да
Запросить цену
Доступные опции
Меблировка
от 224 000 руб.
Отделка
включена
Выберите условия покупки
Забронируйте объект по телефону
Онлайн-бронирование временно недоступно
Перейти к сравнению
Закрыть