Top.Mail.Ru

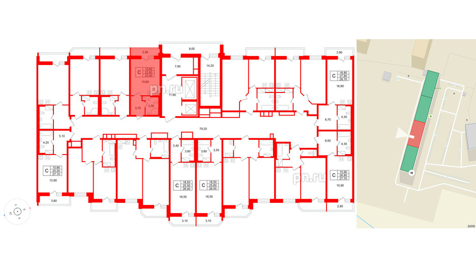
Студия 22.6 м², № 450

Квартира в ЖК «Яркий», студия, 22.6 м², 9 этаж
Квартира в ЖК «Яркий», студия, 22.6 м², 9 этаж
22,60 м² 2.59 м 9 из 12
Общая площадь Высота потолка Этаж
Отделка — 
Нет

Условия покупки

Выгодное предложение | Готовые квартиры
*Подробнее
Выберите условия покупки
Перейти к сравнению