Top.Mail.Ru

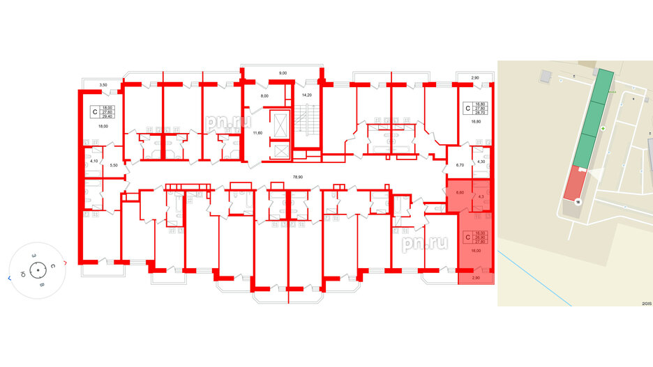
Студия 26.9 м², № 559

Квартира в ЖК «Яркий», студия, 26.9 м², 6 этаж
Квартира в ЖК «Яркий», студия, 26.9 м², 6 этаж
26,90 м² 2.59 м 6 из 12
Общая площадь Высота потолка Этаж
Отделка — 
Нет

Условия покупки

Выгодное предложение | Готовые квартиры
*Подробнее
Выберите условия покупки
Перейти к сравнению