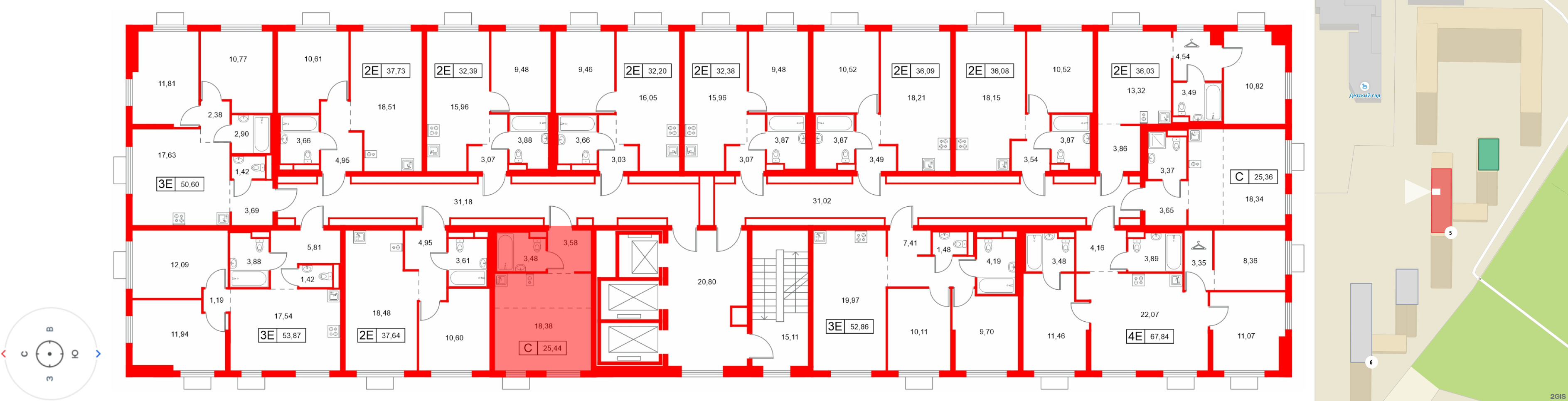
Студия 25.44 м², № 271
ЖК «Заречный парк» , Корпус 5
Срок сдачи — IV кв. 2027 г.
| 25,44 м² | 18,38 м² | 2.62 м | 16 из 24 |
| Общая площадь | Площадь комнат | Высота потолка | Этаж |
|---|
| Тип санузла:  | Совмещенный | Балкон - нет | Отделка — |
|---|
Выберите условия покупки
Забронируйте объект по телефону
Онлайн-бронирование временно недоступно