Top.Mail.Ru

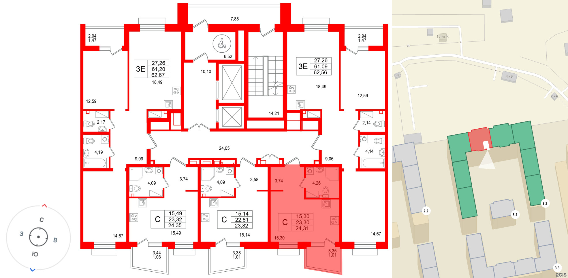
Студия 24.31 м², № 210

Квартира в ЖК «Респект», студия, 24.31 м², 7 этаж
Квартира в ЖК «Респект», студия, 24.31 м², 7 этаж
24,31 м² 15,30 м² 2.7 м 7 из 13
Общая площадь Площадь комнат Высота потолка Этаж
Тип санузла:  Совмещенный Есть балкон Отделка — 
White box Респект
Выберите условия покупки
Перейти к сравнению