Top.Mail.Ru

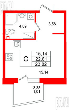
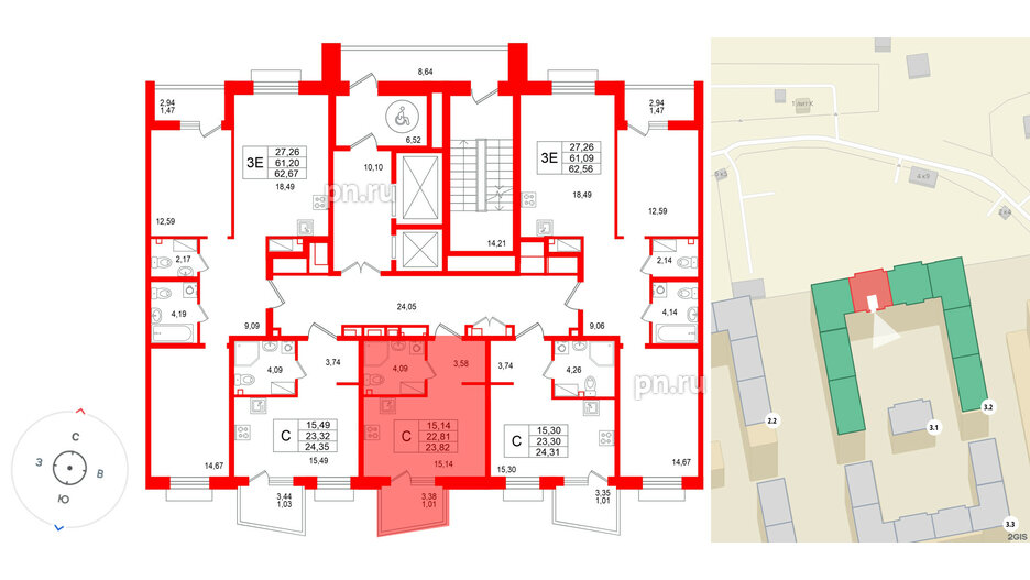
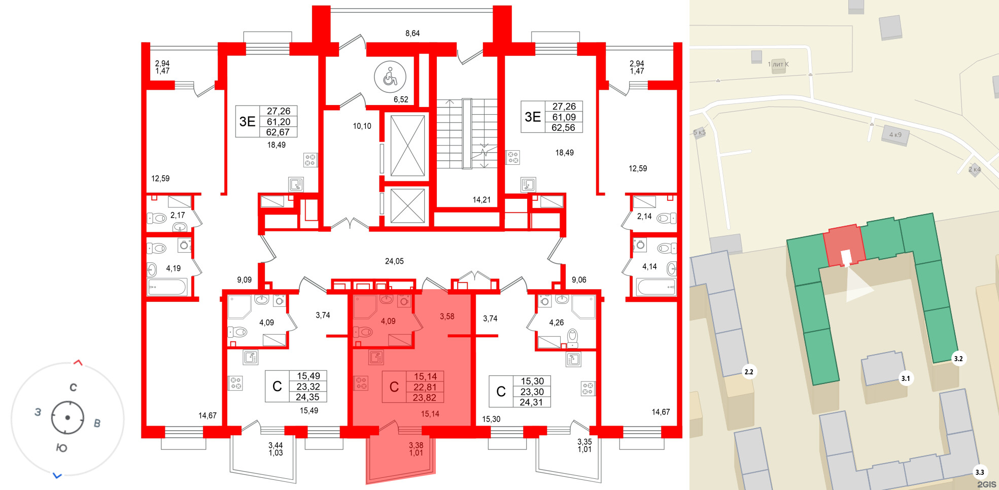
Студия 23.82 м², № 231

Квартира в ЖК «Респект», студия, 23.82 м², 11 этаж
Квартира в ЖК «Респект», студия, 23.82 м², 11 этаж
23,82 м² 15,14 м² 2.7 м 11 из 13
Общая площадь Площадь комнат Высота потолка Этаж
Тип санузла:  Совмещенный Есть балкон Отделка — 
White box Респект
Выберите условия покупки
Перейти к сравнению