Top.Mail.Ru

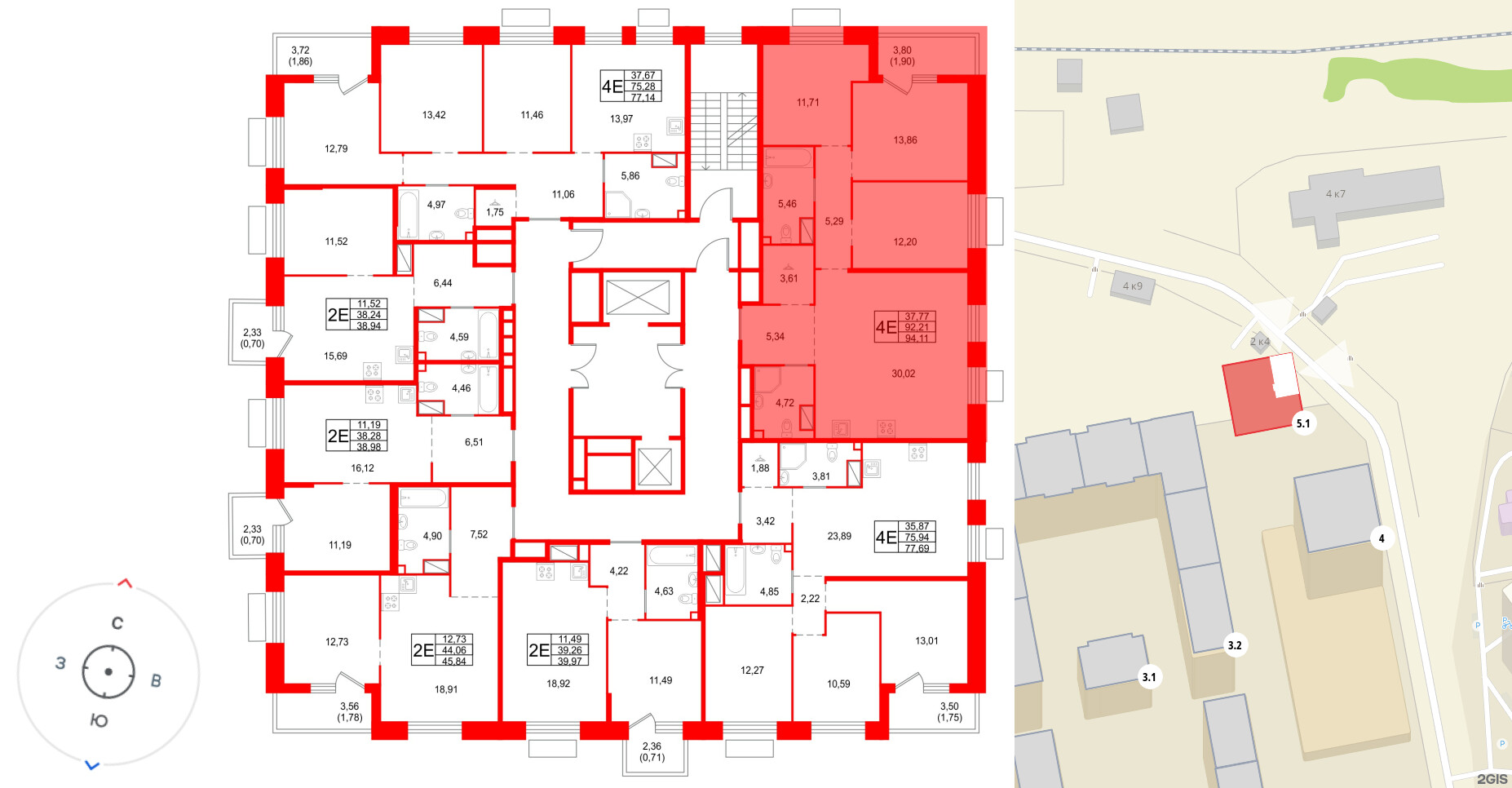
3 комнатная квартира 94.11 м², № 64

Квартира в ЖК «Респект», 3 комнатная, 94.11 м², 11 этаж
Квартира в ЖК «Респект», 3 комнатная, 94.11 м², 11 этаж
94,11 м² 2.7 м 11 из 13
Общая площадь Высота потолка Этаж
Отделка — 
White box Респект
Выберите условия покупки
Перейти к сравнению