Top.Mail.Ru

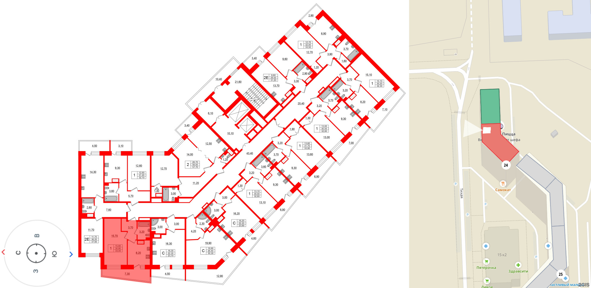
1 комнатная квартира 33 м², № 62

Квартира в ЖК Стороны Света, 1 комнатная, 33 м², 6 этаж
Квартира в ЖК Стороны Света, 1 комнатная, 33 м², 6 этаж
33,00 м² 15,70 м² 8,20 м² 2.54 м 6 из 15
Общая площадь Площадь комнат Площадь кухни Высота потолка Этаж
Тип санузла:  Совмещенный Есть балкон Отделка — 
Горький шоколад
Выберите условия покупки
Перейти к сравнению