Top.Mail.Ru

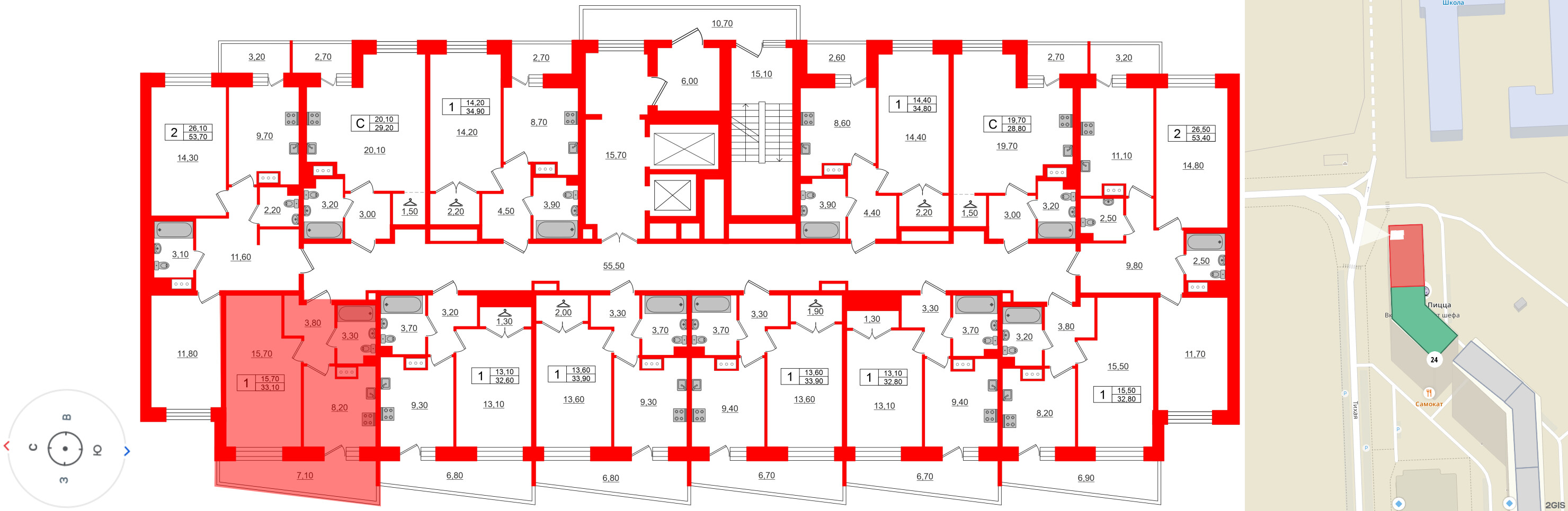
1 комнатная квартира 33.1 м², № 347

Квартира в ЖК Стороны Света, 1 комнатная, 33.1 м², 15 этаж
Квартира в ЖК Стороны Света, 1 комнатная, 33.1 м², 15 этаж
33,10 м² 2.54 м 15 из 15
Общая площадь Высота потолка Этаж
Отделка — 
Мягкая карамель
Выберите условия покупки
Перейти к сравнению