Top.Mail.Ru

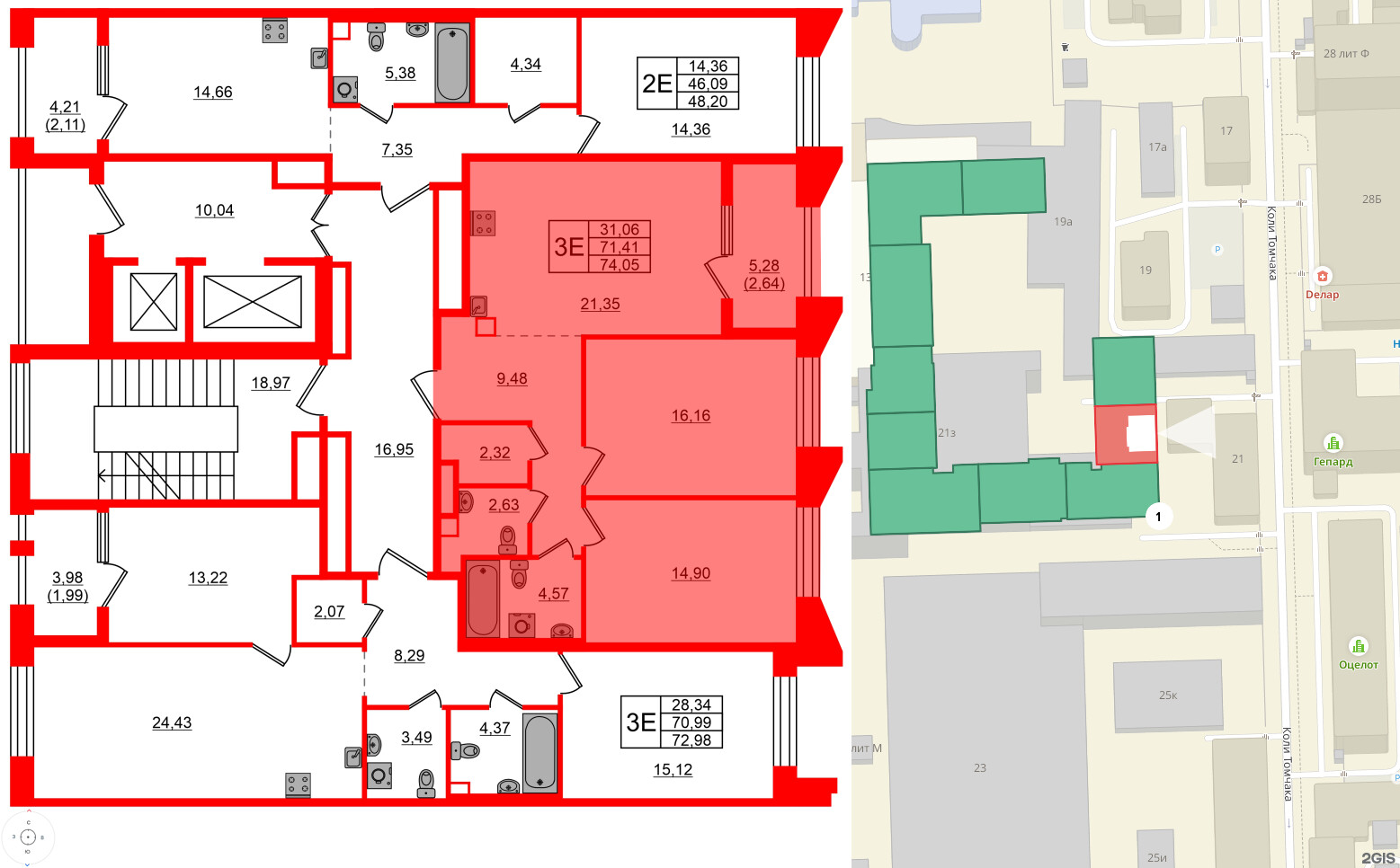
3е комнатная квартира 74.05 м², № 9.2.2.

Квартира в ЖК Знатный, 2 комнатная, 74.05 м², 2 этаж
Квартира в ЖК Знатный, 2 комнатная, 74.05 м², 2 этаж
74,05 м² 31,06 м² 21,35 м² 2.9 м 2 из 10
Общая площадь Площадь комнат Площадь кухни Высота потолка Этаж
Два санузла Лоджия Отделка — 
White box
Выберите условия покупки
Перейти к сравнению