Top.Mail.Ru

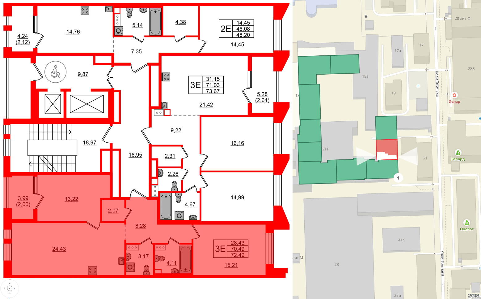
3е комнатная квартира 72.49 м², № 9.5.3.

Квартира в ЖК Знатный, 2 комнатная, 72.49 м², 5 этаж
Квартира в ЖК Знатный, 2 комнатная, 72.49 м², 5 этаж
72,49 м² 28,43 м² 24,43 м² 2.9 м 5 из 10
Общая площадь Площадь комнат Площадь кухни Высота потолка Этаж
Два санузла Лоджия Отделка — 
White box
Выберите условия покупки
Перейти к сравнению