Top.Mail.Ru

Коммерческое помещение 23.2 м², ID 1380255

за 9 157 040 руб.
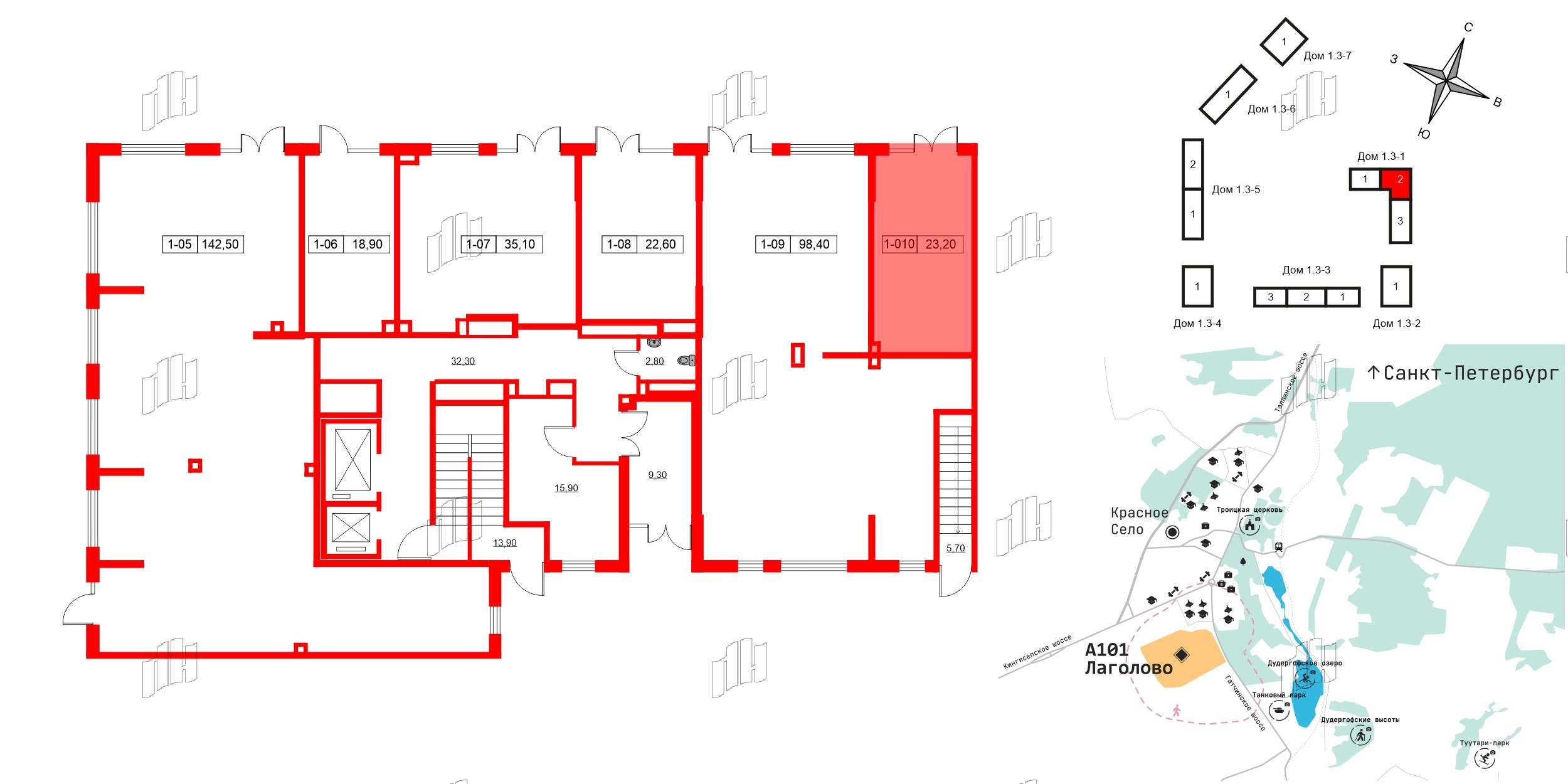
Помещение в ЖК А101Лаголово, 23.2 м², 1 этаж
Помещение в ЖК А101Лаголово, 23.2 м², 1 этаж
23,20 м² 1 из 12
Общая площадь Этаж
Отделка —  Нет
Выберите условия покупки
Перейти к сравнению