Top.Mail.Ru

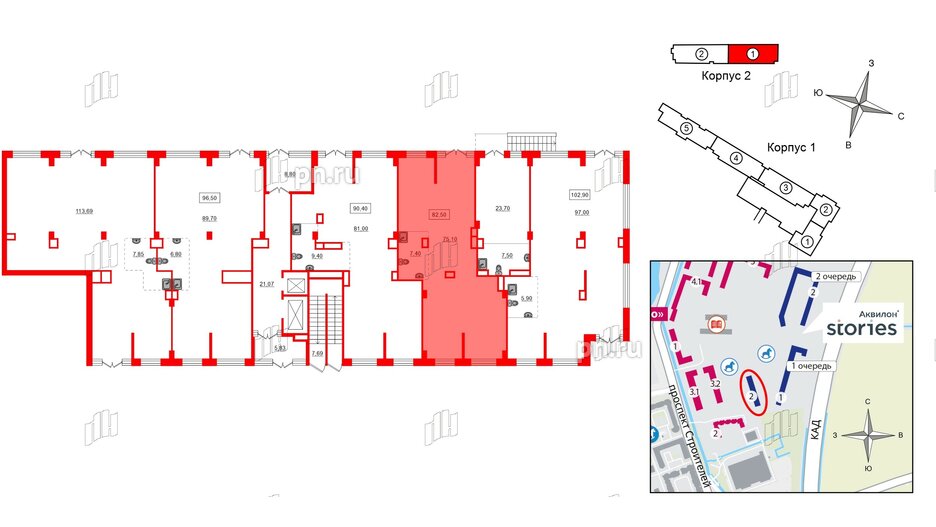
Коммерческое помещение 82.5 м², ID 1258718

за 18 403 562 руб.
Помещение в ЖК Аквилон Сторис, 82.5 м², 1 этаж
Помещение в ЖК Аквилон Сторис, 82.5 м², 1 этаж
82,50 м² 1 из 1
Общая площадь Этаж
Отделка —  Нет
Выберите условия покупки
Перейти к сравнению