Top.Mail.Ru

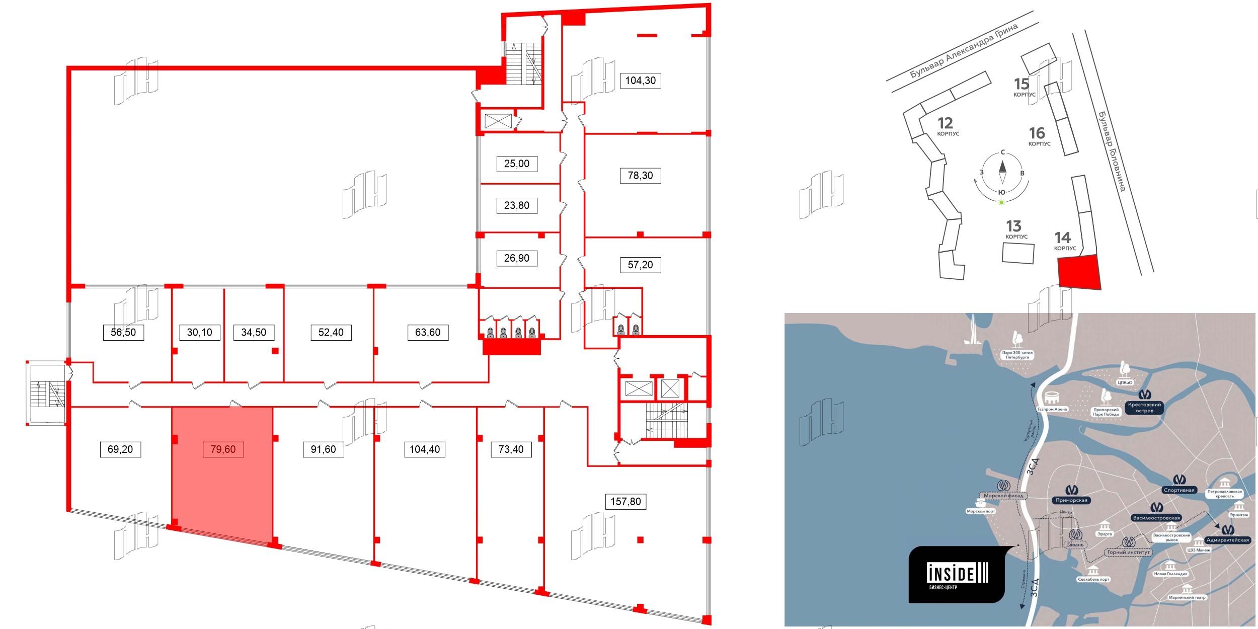
Коммерческое помещение 79.6 м², ID 1400686

за 20 572 799 руб.
Помещение в ЖК БЦ INSIDE, 79.6 м², 5 этаж
Помещение в ЖК БЦ INSIDE, 79.6 м², 5 этаж
79,60 м² 5 из 8
Общая площадь Этаж
Отделка —  Нет
Выберите условия покупки
Перейти к сравнению