Top.Mail.Ru

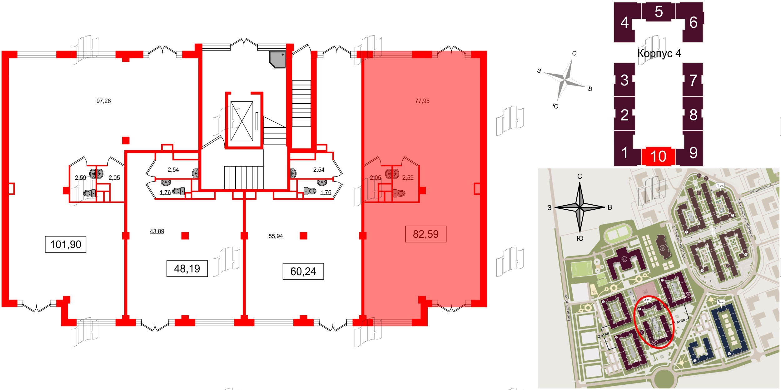
Коммерческое помещение 82.59 м², ID 1419185

за 23 637 175 руб.
Помещение в ЖК Дубровский, 82.59 м², 1 этаж
Помещение в ЖК Дубровский, 82.59 м², 1 этаж
82,59 м² 1 из 4
Общая площадь Этаж
Отделка —  Нет
Выберите условия покупки
Перейти к сравнению