Top.Mail.Ru

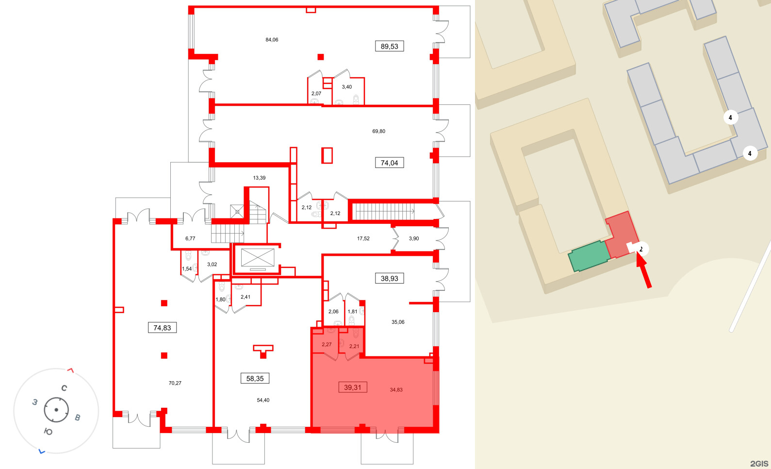
Коммерческое помещение 39.31 м², ID 1526556

за 13 329 156 руб.
Помещение в ЖК Дубровский, 39.31 м², 1 этаж
Помещение в ЖК Дубровский, 39.31 м², 1 этаж
39,31 м² 1 из 4
Общая площадь Этаж
Отделка —  Нет
Выберите условия покупки
Перейти к сравнению