Top.Mail.Ru

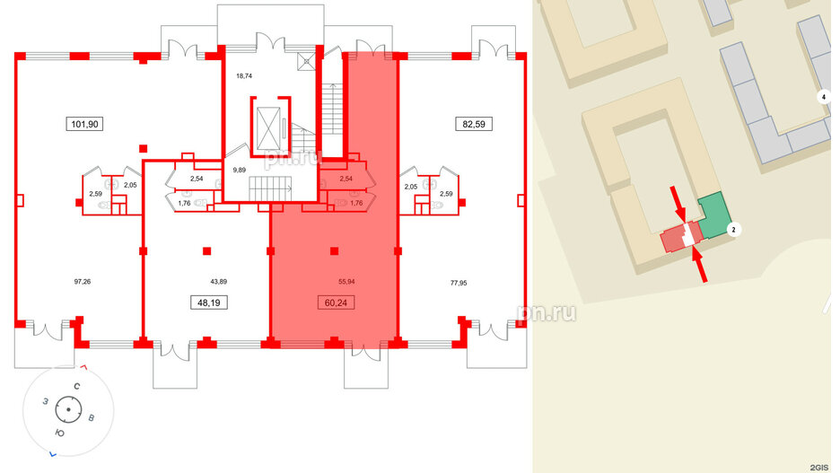
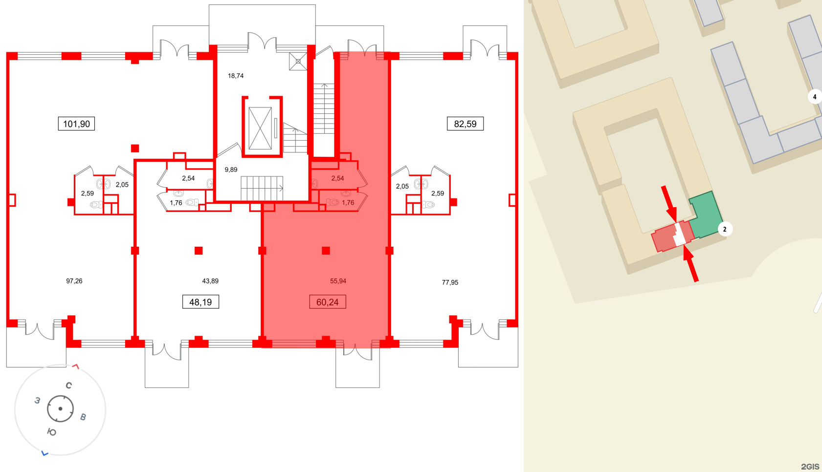
Коммерческое помещение 60.24 м², ID 1526560

за 15 064 638 руб.
Помещение в ЖК Дубровский, 60.24 м², 1 этаж
Помещение в ЖК Дубровский, 60.24 м², 1 этаж
60,24 м² 1 из 4
Общая площадь Этаж
Отделка —  Нет
Выберите условия покупки
Перейти к сравнению