Top.Mail.Ru

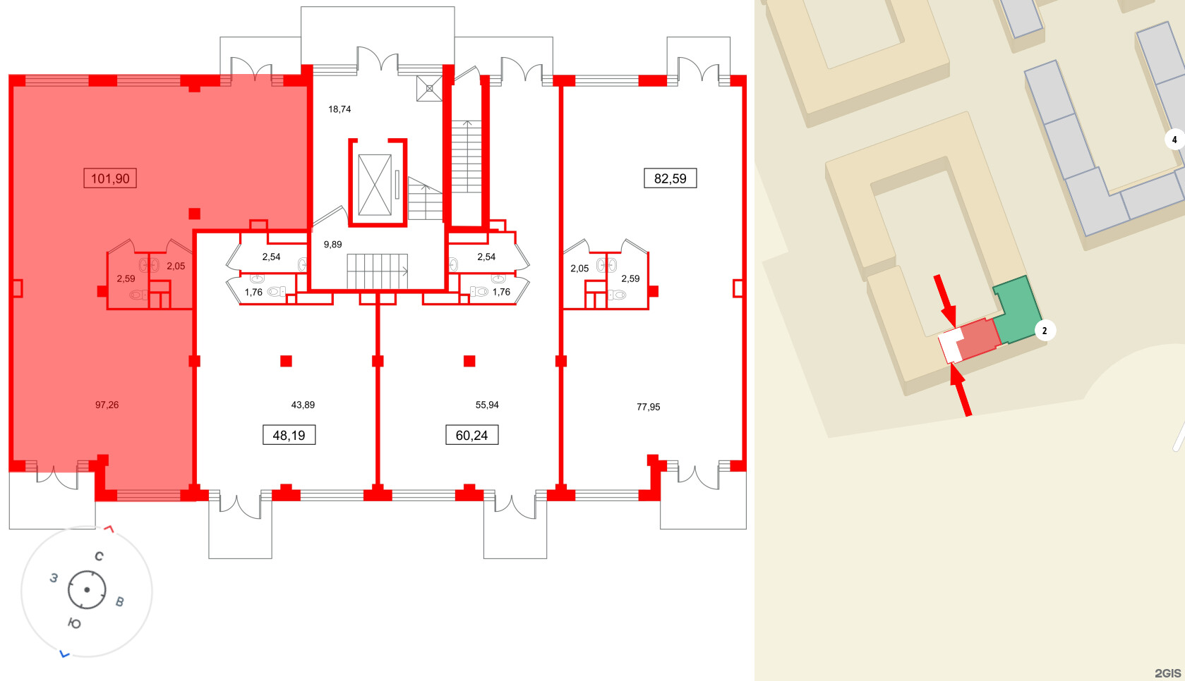
Коммерческое помещение 101.9 м², ID 1526562

за 22 421 872 руб.
Помещение в ЖК Дубровский, 101.9 м², 1 этаж
Помещение в ЖК Дубровский, 101.9 м², 1 этаж
101,90 м² 1 из 4
Общая площадь Этаж
Отделка —  Нет
Выберите условия покупки
Перейти к сравнению