Top.Mail.Ru

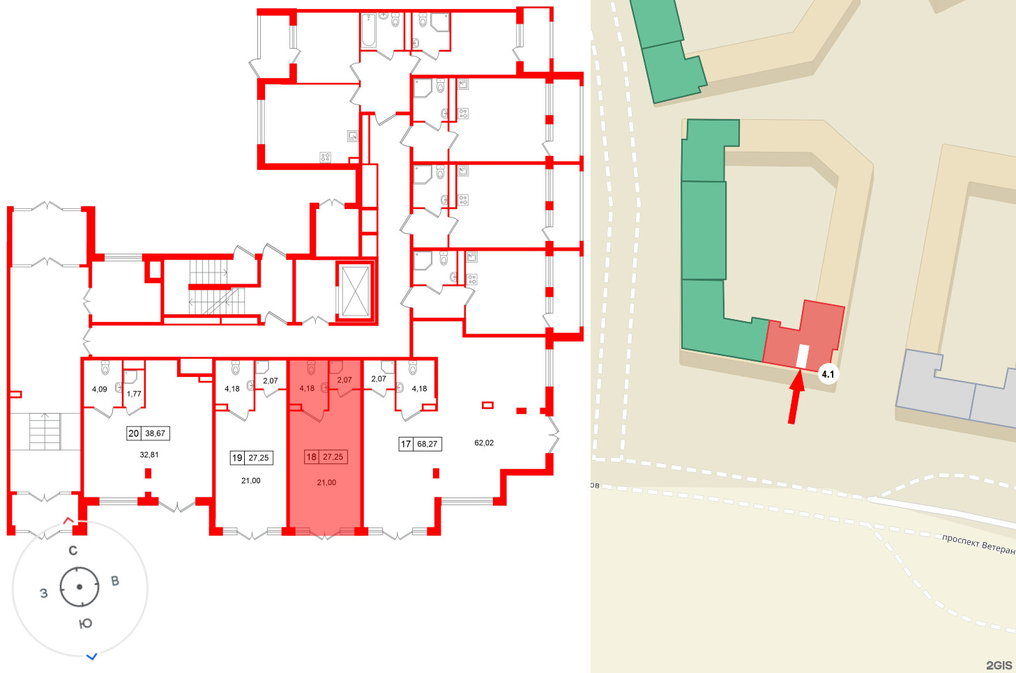
Коммерческое помещение 27.25 м², ID 1493624

за 8 240 400 руб.
Помещение в ЖК «Дворцовый фасад╗, 27.25 м², 1 этаж
Помещение в ЖК «Дворцовый фасад╗, 27.25 м², 1 этаж
27,25 м² 3,60 м 1 из 4
Общая площадь Высота потолка Этаж
Отделка —  Нет
Выберите условия покупки
Перейти к сравнению