Top.Mail.Ru

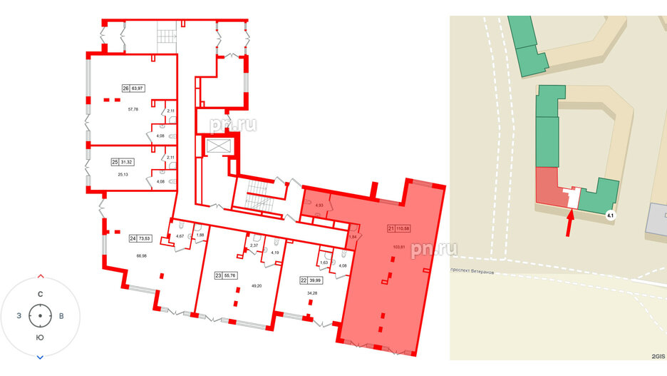
Коммерческое помещение 110.58 м², ID 1493628

за 24 382 890 руб.
Помещение в ЖК «Дворцовый фасад╗, 110.58 м², 1 этаж
Помещение в ЖК «Дворцовый фасад╗, 110.58 м², 1 этаж
110,58 м² 3,60 м 1 из 4
Общая площадь Высота потолка Этаж
Отделка —  Нет
Выберите условия покупки
Перейти к сравнению