Top.Mail.Ru

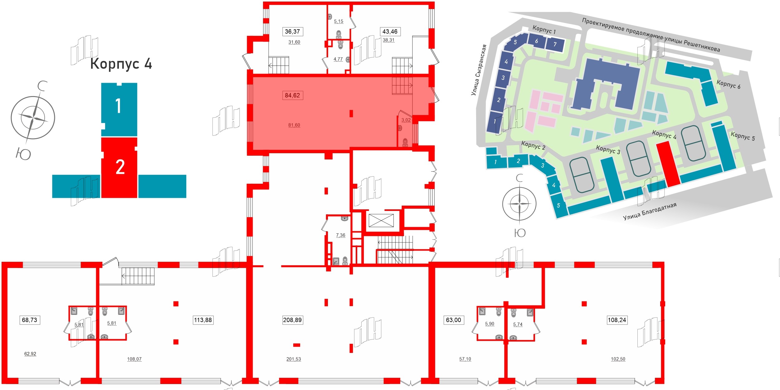
Коммерческое помещение 84.5 м², ID 1133112

за 24 927 500 руб.
Помещение в ЖК ID Парк Победы, 84.5 м², 1 этаж
Помещение в ЖК ID Парк Победы, 84.5 м², 1 этаж
84,50 м² 1 из 11
Общая площадь Этаж
Отделка —  Нет

Уникальные помещения

Выберите условия покупки
Перейти к сравнению