Top.Mail.Ru

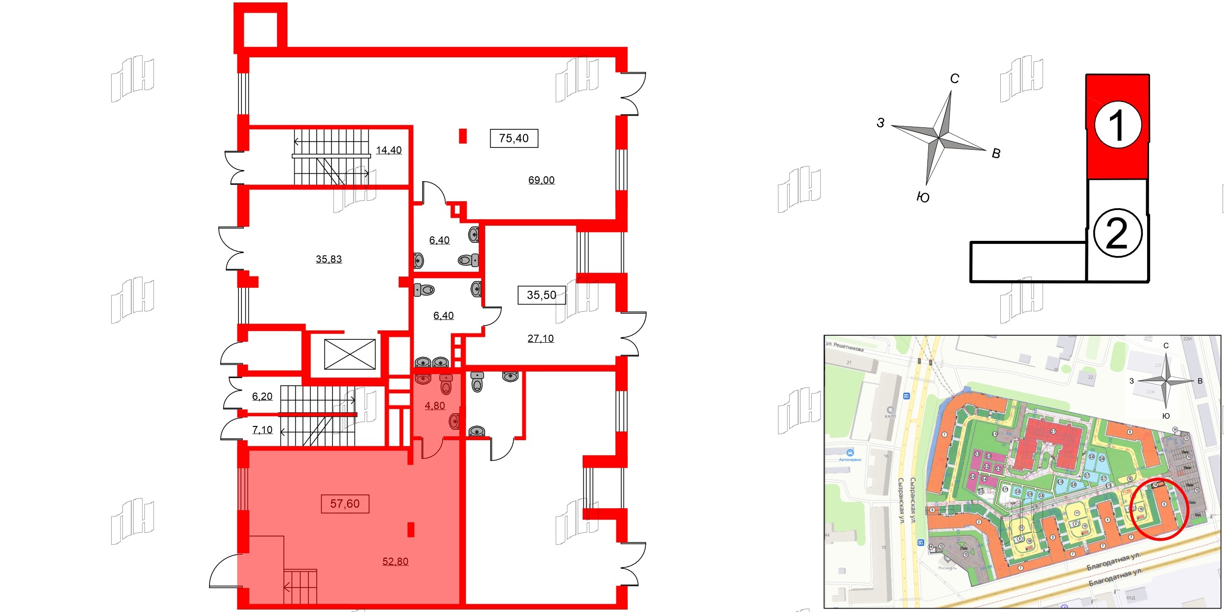
Коммерческое помещение 57.6 м², ID 1356567

за 16 416 000 руб.
Помещение в ЖК ID Парк Победы, 57.6 м², 1 этаж
Помещение в ЖК ID Парк Победы, 57.6 м², 1 этаж
57,60 м² 1 из 11
Общая площадь Этаж
Отделка —  Нет
Выберите условия покупки
Перейти к сравнению