Top.Mail.Ru

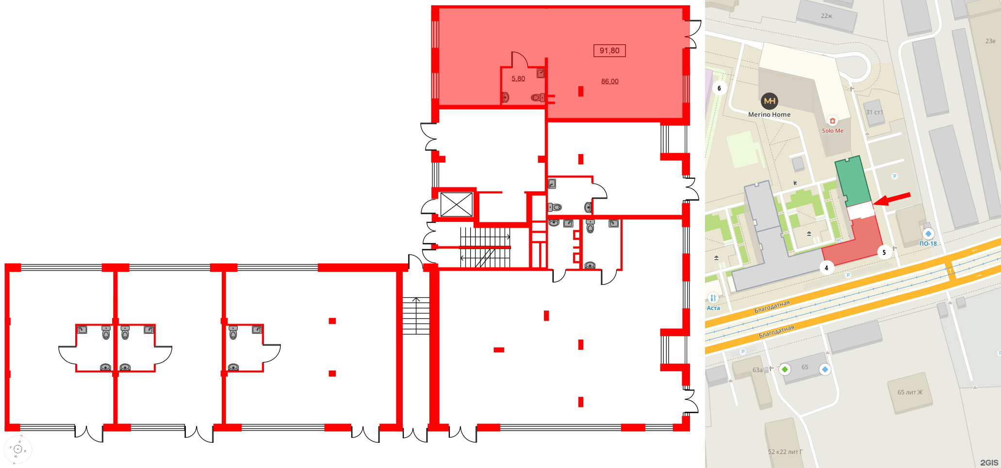
Коммерческое помещение 91.8 м², ID 1356570

за 33 507 000 руб.
Помещение в ЖК ID Парк Победы, 91.8 м², 1 этаж
Помещение в ЖК ID Парк Победы, 91.8 м², 1 этаж
91,80 м² 1 из 11
Общая площадь Этаж
Отделка —  Нет
Выберите условия покупки
Перейти к сравнению