Top.Mail.Ru

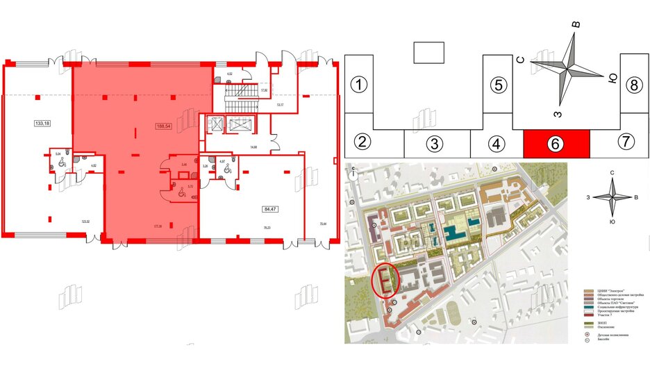
Коммерческое помещение 189.2 м², ID 1371007

за 84 446 960 руб.
Помещение в ЖК ID Светлановский, 189.2 м², 1 этаж
Помещение в ЖК ID Светлановский, 189.2 м², 1 этаж
189,20 м² 1 из 1
Общая площадь Этаж
Отделка —  Нет
Выберите условия покупки
Перейти к сравнению