Top.Mail.Ru

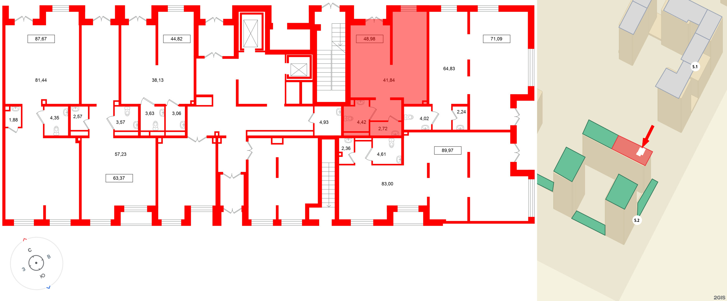
Коммерческое помещение 48.98 м², ID 1524392

за 17 143 000 руб.
Помещение в ЖК Имена, 48.98 м², 1 этаж
Помещение в ЖК Имена, 48.98 м², 1 этаж
48,98 м² 1 из 18
Общая площадь Этаж
Отделка —  Нет
Выберите условия покупки
Перейти к сравнению