Top.Mail.Ru

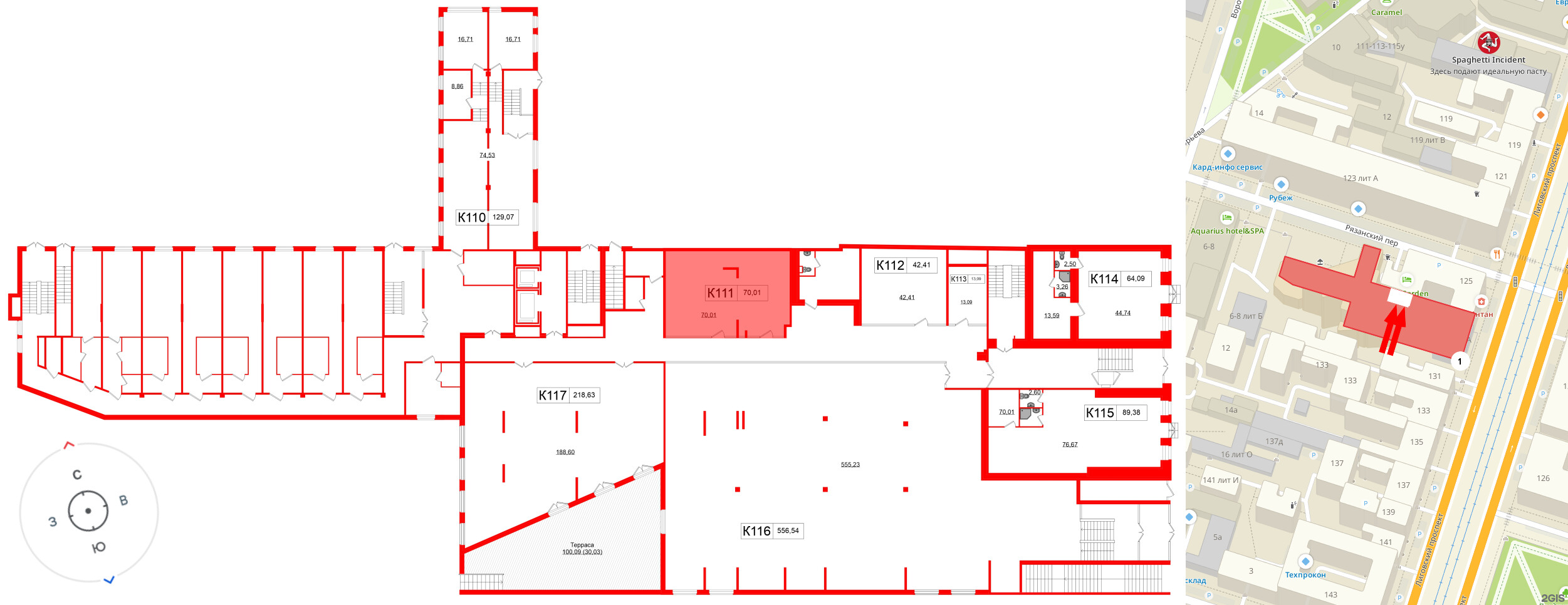
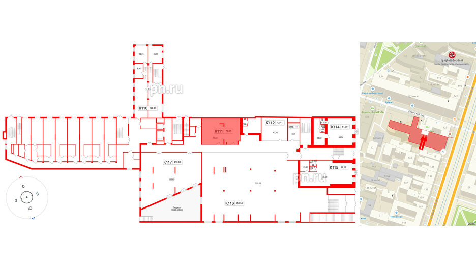
Коммерческое помещение 70.01 м², ID 1427107

за 31 674 204 руб.
Помещение в ЖК Клубный дом Лиговский,127, 70.01 м², 1 этаж
Помещение в ЖК Клубный дом Лиговский,127, 70.01 м², 1 этаж
70,01 м² 1 из 10
Общая площадь Этаж
Отделка —  Нет
Выберите условия покупки
Перейти к сравнению